E4 7SN - 4 bedroom semidetached house for sale in Lawrence Hill, Chi…

View on Property Piper

4 bedroom semi-detached house for sale in Lawrence Hill, Chingford, E4

Summary - 21 LAWRENCE HILL LONDON E4 7SN

4 bed 1 bath Semi-Detached

**Key Features:**
- Four spacious bedrooms
- Bright semi-detached with classic brick front
- Ample potential for extensions (STPP)
- Generous west-facing garden
- Chain free sale
- Close to Epping Forest and local amenities
- Scenic views over King George V Sailing Reservoir

**Summary:**
Discover your perfect family home in this charming four-bedroom semi-detached house, ideally situated just moments from Epping Forest. With 1,094 square feet of living space, this bright residence features two reception rooms and a generous west-facing garden, providing plenty of room for outdoor gatherings and potential for future extensions (subject to planning). The inviting interior boasts contemporary wood flooring and natural light, while the kitchen offers modern conveniences for the home chef.

Enjoy the best of both worlds with local shops, cafes, and schools nearby, and excellent transport links to London, making your daily commute a breeze. With scenic views of King George V Sailing Reservoir from multiple bedrooms, this property harmonizes privacy and natural beauty. Whether you're a growing family or an investor seeking rental potential, this home exemplifies comfort, convenience, and future development possibilities. Don't miss this opportunity—homes like this are in high demand!

Property Details

Brochure Descriptions

Image Descriptions

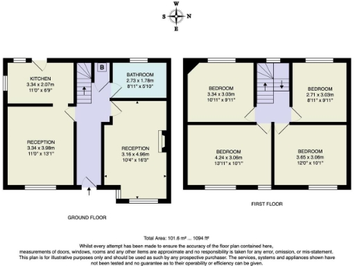
Floorplan Description

Rooms

Textual Property Features

Detected Visual Features

EPC Details

Nearby Schools

Nearest Bars And Restaurants

,,,,}

Nearest General Shops

,,}

Nearest Grocery shops

,,}

Nearest Supermarkets

,,}

Nearest Religious buildings

,,}

Nearest Medical buildings

,,,}

Nearest Airports

,}

Nearest Leisure Facilities

,,,,}

Nearest Tourist attractions

,,}

Nearest Train stations

,,,,}

Nearest Bus stations and stops

,,,,}

Nearest Hotels

,,}

Tags

Local Market Stats

Similar Properties

Meta

High Res Images

Compatible Images

Low res Images

Thumbnails

Raw Images

High Res Floorplan Images

Compatible Floorplan Images

Low res Floorplan Images

FloorplanImages Thumbnail

Raw Floorplan Images