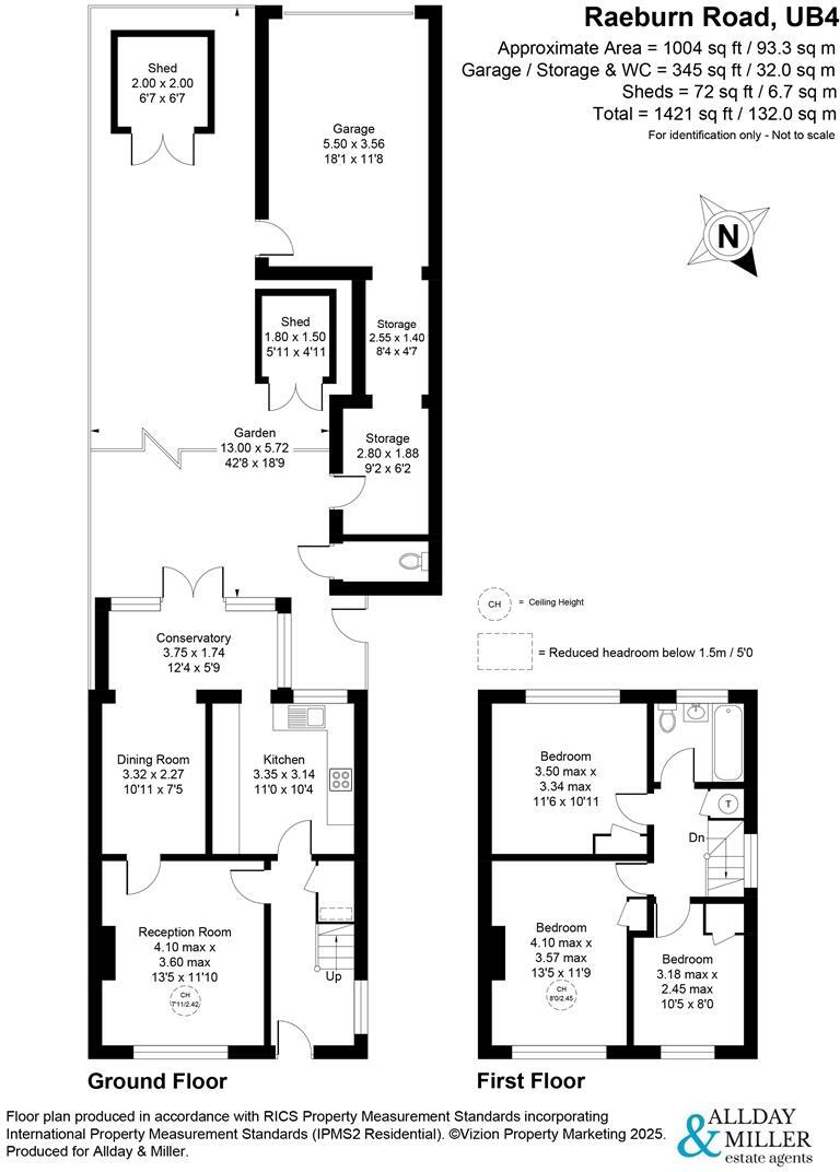
Three bedrooms in a family-sized 1,004 sq ft layout
This freehold three-bedroom semi-detached house on Raeburn Road is presented in good condition and sized for family living at about 1,004 sq ft. The ground floor offers a comfortable reception and dining flow, a fitted kitchen and a conservatory that opens onto a low-maintenance rear garden. A driveway to the front provides off-street parking for one to two cars and there is substantial external storage with an outbuilding and WC.
Upstairs are three well-proportioned bedrooms and a single modern bathroom — practical for family life but potentially limiting for larger households. The house was built in the mid-20th century and retains a conventional layout; there is scope to increase living space with further extension subject to planning permission (STPP).
Location is a key strength: fast broadband and excellent mobile signal support hybrid working, while Hayes & Harlington station (Elizabeth Line) and good local schools are within easy reach. Local amenities along Uxbridge Road are close by and the immediate area records low crime.
Notable negatives are factual and practical: the property lies in an area classified as relatively deprived, the cavity walls are assumed to have no added insulation (upgrade likely needed), and there is only one bathroom. Buyers seeking larger modern layouts may want to factor refurbishment or extension costs into their budget.



































































