Low-maintenance freehold one-bed steps from Chatham station — ideal for commuters and first-time buyers..
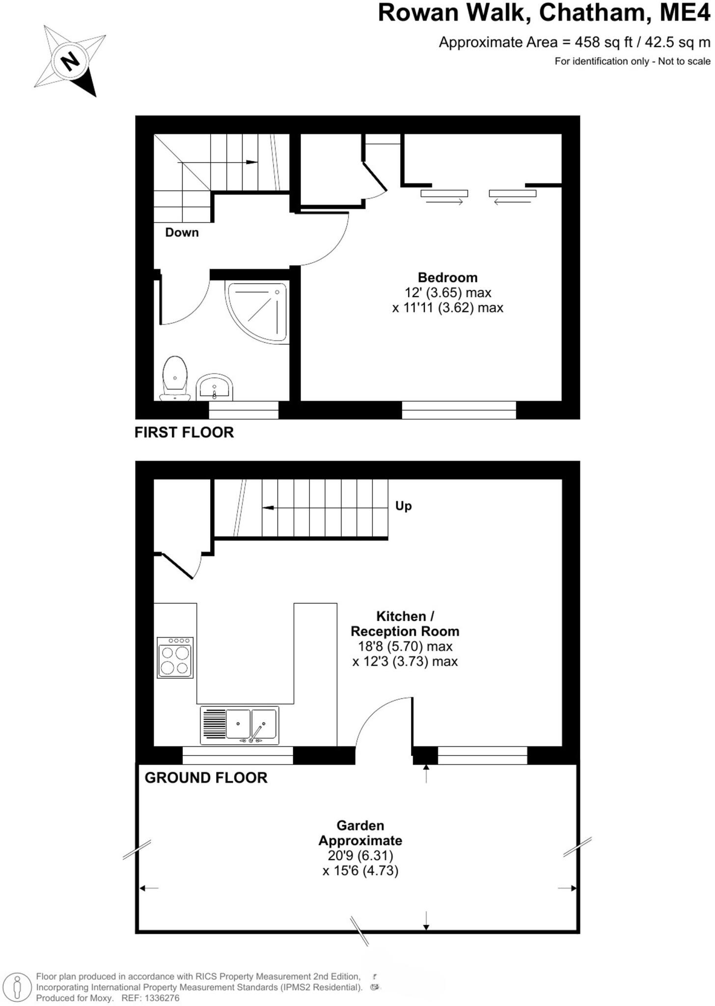
- One double bedroom with first-floor bathroom
- Open-plan living room and fitted kitchen, modern interior features
- Southwest-facing small garden, limited outdoor space
- Allocated parking space plus resident permit (£30 p.a.)
- Direct trains to London in approximately 32–45 minutes
- Electric storage heaters (less efficient than gas central heating)
- Very high local crime levels; area described as very deprived
- Exterior shows age; some external modernisation recommended
A compact, freehold one-bedroom terraced home offering straightforward, low-maintenance living close to Chatham mainline station. The open-plan ground floor with a fitted kitchen provides a bright everyday space, while the double bedroom and first-floor bathroom keep the layout simple and efficient — a practical fit for first-time buyers or commuters.
The property benefits from a southwest-facing small garden that catches afternoon sun and an allocated parking space, with additional resident permit parking available for £30 a year. Fast rail links make commuting easy, with direct trains to London taking around 32–45 minutes depending on service, so this address will appeal to those working in the city.
There are a few important drawbacks to note. The area records very high crime levels and is described as very deprived, which affects local amenity perception and resale dynamics. Heating is by electric storage heaters, which can be costly compared with gas central heating, and the exterior shows signs of age and will benefit from cosmetic updating. The plot is very small, so outdoor space is limited.
This home represents an affordable, freehold entry onto the ladder with clear potential for cosmetic improvement. Buyers should verify service charge, tenure details, and the condition of fixtures, fittings, and services through a survey and solicitor checks before committing.
1 bedroom terraced house for sale in Flamingo Close, Chatham, ME5 — £195,000 • 1 bed • 1 bath • 481 ft²
1 bedroom end of terrace house for sale in Semple Gardens, Chatham, ME4 — £200,000 • 1 bed • 1 bath • 544 ft²
2 bedroom terraced house for sale in Castle Road, Chatham, Kent, ME4 — £230,000 • 2 bed • 2 bath • 749 ft²
1 bedroom coach house for sale in Empire Road, Strood, Rochester, Kent. ME2 — £210,000 • 1 bed • 1 bath • 463 ft²
2 bedroom terraced house for sale in Mayfair, Strood, Rochester, Kent. ME2 — £220,000 • 2 bed • 1 bath • 673 ft²
1 bedroom flat for sale in Mary Court, Chatham, Kent, ME4 — £140,000 • 1 bed • 1 bath • 496 ft²






















































