### Standout Features:
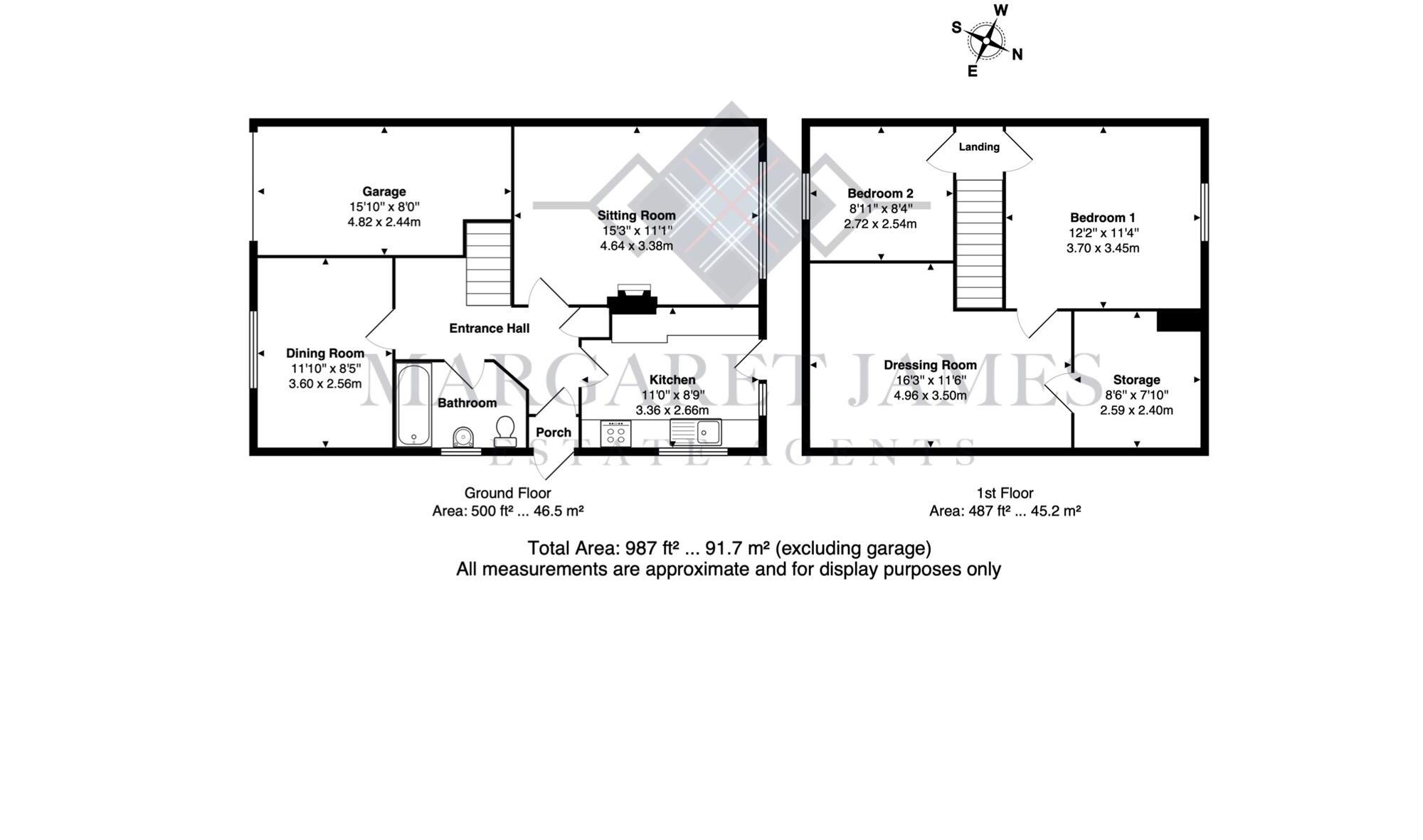
- **Stunning Two/Three-Bedroom Layout**: Currently configured as two bedrooms with a luxurious walk-in wardrobe/dressing area.
- **Modern Kitchen and Dining Room**: Newly refitted kitchen, ideal for entertaining.
- **High-Spec Bathroom**: Recently renovated for a stylish finish.
- **Outdoor Spaces**: Beautifully landscaped front and rear gardens, perfect for relaxation or summer gatherings.
- **Convenient Parking**: Driveway for two cars plus garage for extra storage.
- **Low Crime Rate Area**: Known for a safe, family-friendly environment.
- **Chain-Free Sale**: Smooth buying process.
- **Local Amenities**: Access to highly-rated primary schools and local amenities including pubs and public transport.
### Summary:
Experience comfortable, modern living in this beautifully presented two/three-bedroom semi-detached home located in the charming village of Denton. The property features a sophisticated master suite with a stunning walk-in wardrobe, a sleek, refitted kitchen, and a separate dining room, all designed with family living and entertainment in mind. Natural light floods the inviting lounge, creating a warm atmosphere for relaxation.
The landscaped gardens provide a perfect outdoor sanctuary, complemented by driveway parking for two vehicles and a garage for convenience. Situated in an affluent area with low crime rates, this property is ideal for families seeking a peaceful village lifestyle with easy access to quality schools—Denton Primary School and others nearby boast excellent Ofsted ratings.
This newly renovated home is move-in ready, and with desirable features and a charming location, early viewing is strongly recommended. Don’t miss the chance to make this exceptional property your new home for just £315,000!
3 bedroom semi-detached house for sale in Dovecote Drive, Denton, Northamptonshire, NN7 — £325,000 • 3 bed • 1 bath • 1165 ft²
3 bedroom semi-detached house for sale in The Leys, Denton, NN7 — £270,000 • 3 bed • 1 bath
4 bedroom link detached house for sale in Wareing Lane, Denton, Northamptonshire, NN7 — £400,000 • 4 bed • 2 bath • 1332 ft²
4 bedroom detached house for sale in Main Street, Denton, Northamptonshire, NN7 — £650,000 • 4 bed • 2 bath • 1929 ft²
4 bedroom detached house for sale in Northampton Road, Denton, Northamptonshire, NN7 — £735,000 • 4 bed • 2 bath • 1743 ft²
3 bedroom semi-detached house for sale in Northampton Road, Denton, NN7 — £295,000 • 3 bed • 1 bath • 900 ft²






































































