Spacious three-bedroom house with landscaped garden and easy town access.
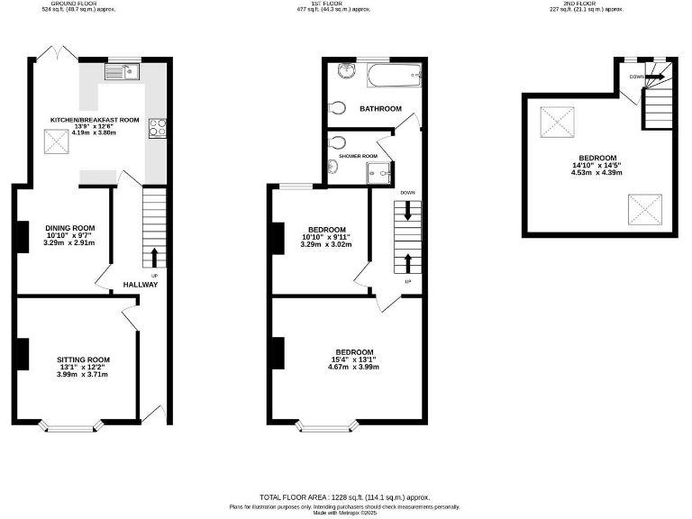
Approx 1,228 sq ft over three floors
South-east private rear garden with pergola and decking
Extended kitchen/breakfast room with underfloor heating
Two bathrooms (family bathroom plus separate shower room)
Potential off-street parking at garden end (requires work)
Possible damp/mould visible in images; cosmetic attention needed
Cavity walls assumed uninsulated — consider insulation works
Freehold; ultrafast broadband and good transport links
Set over three floors, this Victorian end-of-terrace offers a roomy 1,228 sq ft layout combining period features and practical updates. Two reception rooms and an extended kitchen/breakfast room with underfloor heating create flexible living space for family life. The south-east rear garden is landscaped and low-maintenance, with a decked pergola currently used as an outdoor kitchen and hardstanding beneath that was previously used for off-street parking.
The property benefits from gas central heating, uPVC double glazing, and ultrafast broadband — useful for home working and modern family routines. It sits a short walk from Burgess Hill town centre, schools rated Good or Outstanding, and the mainline station with direct links to London, Gatwick and Brighton.
Buyers should note some material points: parts of the property show potential damp/mould in images and the cavity walls are assumed to be uninsulated, which may affect heating costs and require remedial work. The pergola/raised decking can be removed to reinstate parking but this will need confirmation and likely some additional works.
Overall this freehold home will suit a family or professionals seeking period character with contemporary comforts, and buyers prepared to carry out minor cosmetic or insulation improvements to maximise energy efficiency and long-term value.
4 bedroom detached house for sale in Livingstone Road, Burgess Hill, RH15 — £650,000 • 4 bed • 2 bath • 1519 ft²
4 bedroom semi-detached house for sale in Cromwell Road, Burgess Hill, RH15 — £500,000 • 4 bed • 2 bath • 1318 ft²
4 bedroom semi-detached house for sale in Beaconsfield Close, Burgess Hill, West Sussex, RH15 — £450,000 • 4 bed • 1 bath • 1180 ft²
3 bedroom terraced house for sale in Cissbury Road, Burgess Hill, RH15 — £290,000 • 3 bed • 1 bath • 952 ft²
3 bedroom terraced house for sale in Fairfield Road, Burgess Hill, RH15 — £365,000 • 3 bed • 1 bath • 828 ft²
3 bedroom semi-detached house for sale in Nye Road, Burgess Hill, RH15 — £425,000 • 3 bed • 1 bath • 1177 ft²










































































