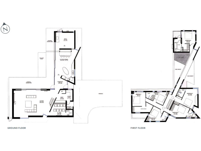
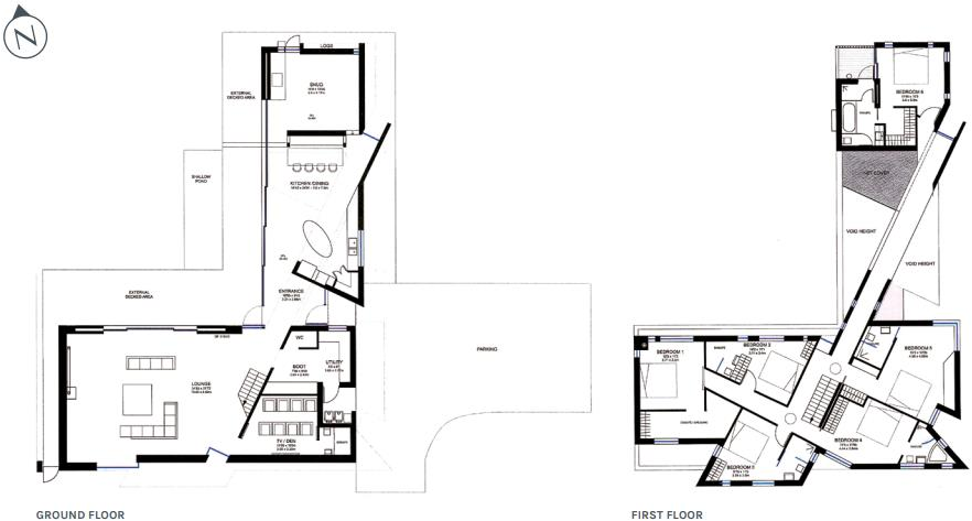
**Standout Features:**
- **Full Planning Permission**: Approved planning for a contemporary six-bedroom home.
- **Architectural Design**: Inspired, eco-friendly design with sustainable materials.
- **Sizeable Lot**: Spans 331 sq.m (3563 sq.ft) with landscaped gardens and mature woodland.
- **Beach Access**: Exclusive access to nearby beach.
- **Chain-Free Sale**: Freedom to move quickly with no chain involved.
- **Low Crime Area**: Safe, family-friendly environment.
**Potential Concerns:**
- **Services Not Connected**: Mains services are nearby but not yet connected.
- **Flood Zone Designation**:部分 of the property classified under Flood Zone 3; overall majority is in Flood Zone 1.
- **Section 106 Contribution**: Buyer responsible for a £43,500 contribution towards affordable housing.
------
Discover a remarkable opportunity to develop your dream home with full planning permission for a stunning architecturally-designed six-bedroom residence. This property is set within a picturesque and tranquil environment, surrounded by mature woodland and offering exclusive beach access, making it an ideal retreat for families or investors.
Spanning an impressive 3563 sq.ft, the lot allows for expansive landscaping and outdoor activities, further enhancing its appeal for comfortable family living. With its contemporary eco-friendly design and a focus on sustainability, the potential for creating a luxurious, modern home is limitless.
While the property offers a private and serene setting, it is crucial to be aware of the approximate £43,500 contribution for housing to be paid by the purchaser. Additionally, though mains services are close by, they are yet to be connected. The property is priced below market value, ensuring both budget-conscious buyers and savvy investors can envision creating something extraordinary in this prime location. Act fast—this opportunity is not expected to last long!
Plot for sale in Quarr Road, Ryde, PO33 — £425,000 • 5 bed • 2 bath • 3369 ft²
Plot for sale in Quarr Road, PO33 — £850,000 • 1 bed • 1 bath • 6135 ft²
Off-plan property for sale in Stunning New Build Plot, Hillway Road, Bembridge., PO35 — £475,000 • 1 bed • 1 bath • 3261 ft²
Plot for sale in Gatehouse Road, Upton, PO33 — £395,000 • 3 bed • 2 bath • 2584 ft²
5 bedroom detached house for sale in Quarr Road, Ryde, Isle of Wight, PO33 — £3,980,000 • 5 bed • 5 bath • 6178 ft²
Plot for sale in Moor Lane, Brighstone, PO30 — £1,275,000 • 1 bed • 1 bath • 1250 ft²










































