ME2 4BP - 3 bedroom end of terrace house for sale in Station Road, St…

View on Property Piper

3 bedroom end of terrace house for sale in Station Road, Strood, Rochester, Kent, ME2

Summary - 59 STATION ROAD STROOD ROCHESTER ME2 4BP

3 bed 1 bath End of Terrace

**Standout Features:**
- Three separate bedrooms
- End-of-terrace Victorian design with period features
- Low-maintenance rear garden and small front garden
- Spacious cellar for storage or potential renovation
- Prime location within walking distance of Strood train station
- Close to local amenities and schools, with good Ofsted ratings

**Summary:**
Discover this charming end-of-terrace Victorian home in the heart of Strood, perfect for first-time buyers or savvy investors. With three separate bedrooms and a well-proportioned layout, the property boasts abundant natural light and features original period detailing, providing character and comfort. The low-maintenance rear garden offers an urban retreat, while the spacious cellar presents exciting potential for storage or future conversions.

Conveniently located just a short walk from Strood train station, residents enjoy easy access to Kent’s transport links and a variety of local amenities, from shops to eateries. This area is ideal for families, with several schools nearby, all rated 'Good' or better. Positioned in a sought-after neighborhood, this property not only meets your immediate needs but also presents fantastic future potential. Act quickly—properties like this, combining access, character, and potential, don't stay on the market for long!

Property Details

Brochure Descriptions

Image Descriptions

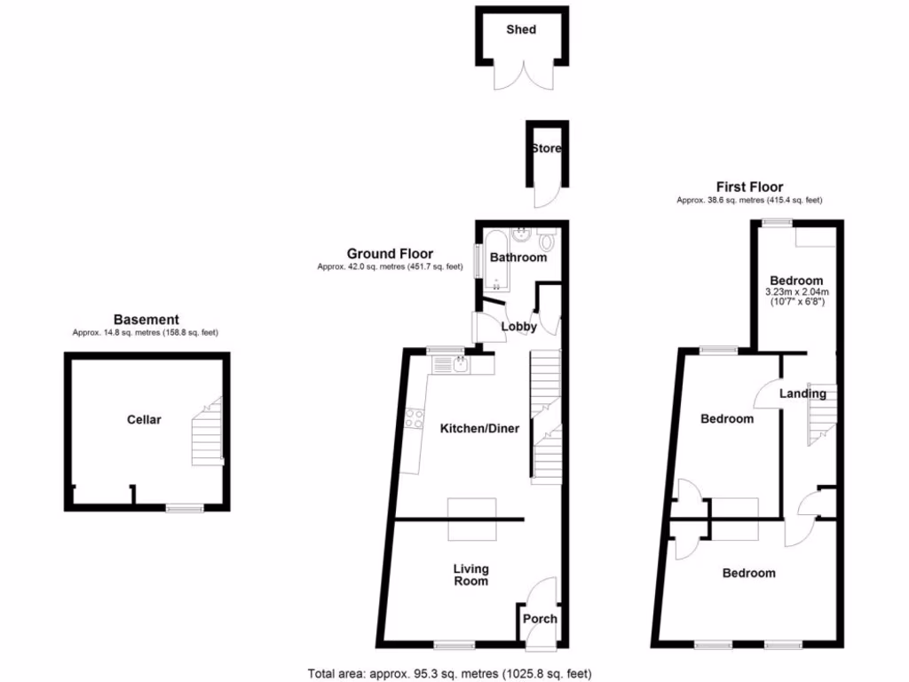
Floorplan Description

Rooms

Textual Property Features

Detected Visual Features

Nearby Schools

Nearest Bars And Restaurants

,,,,}

Nearest General Shops

,,}

Nearest Grocery shops

,,}

Nearest Supermarkets

,,}

Nearest Religious buildings

,,}

Nearest Medical buildings

,,,}

Nearest Airports

,}

Nearest Leisure Facilities

,,,,}

Nearest Tourist attractions

,,}

Nearest Train stations

,,,,}

Nearest Bus stations and stops

,,,,}

Nearest Hotels

,,}

Tags

Local Market Stats

AirBnB Data

Meta

High Res Images

Compatible Images

Low res Images

Thumbnails

Raw Images

High Res Floorplan Images

Compatible Floorplan Images

Low res Floorplan Images

FloorplanImages Thumbnail

Raw Floorplan Images