Easy, modern two-bedroom home near York with allocated parking and communal gardens.
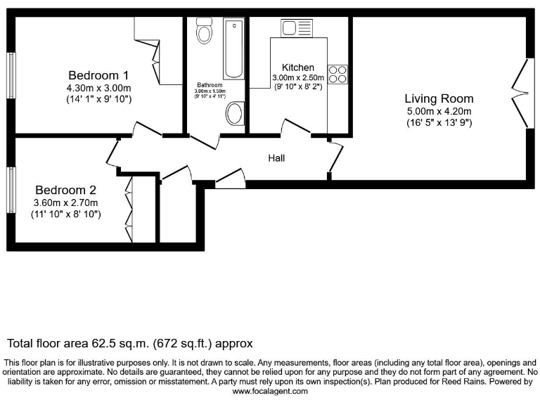
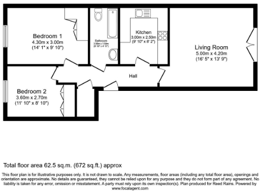
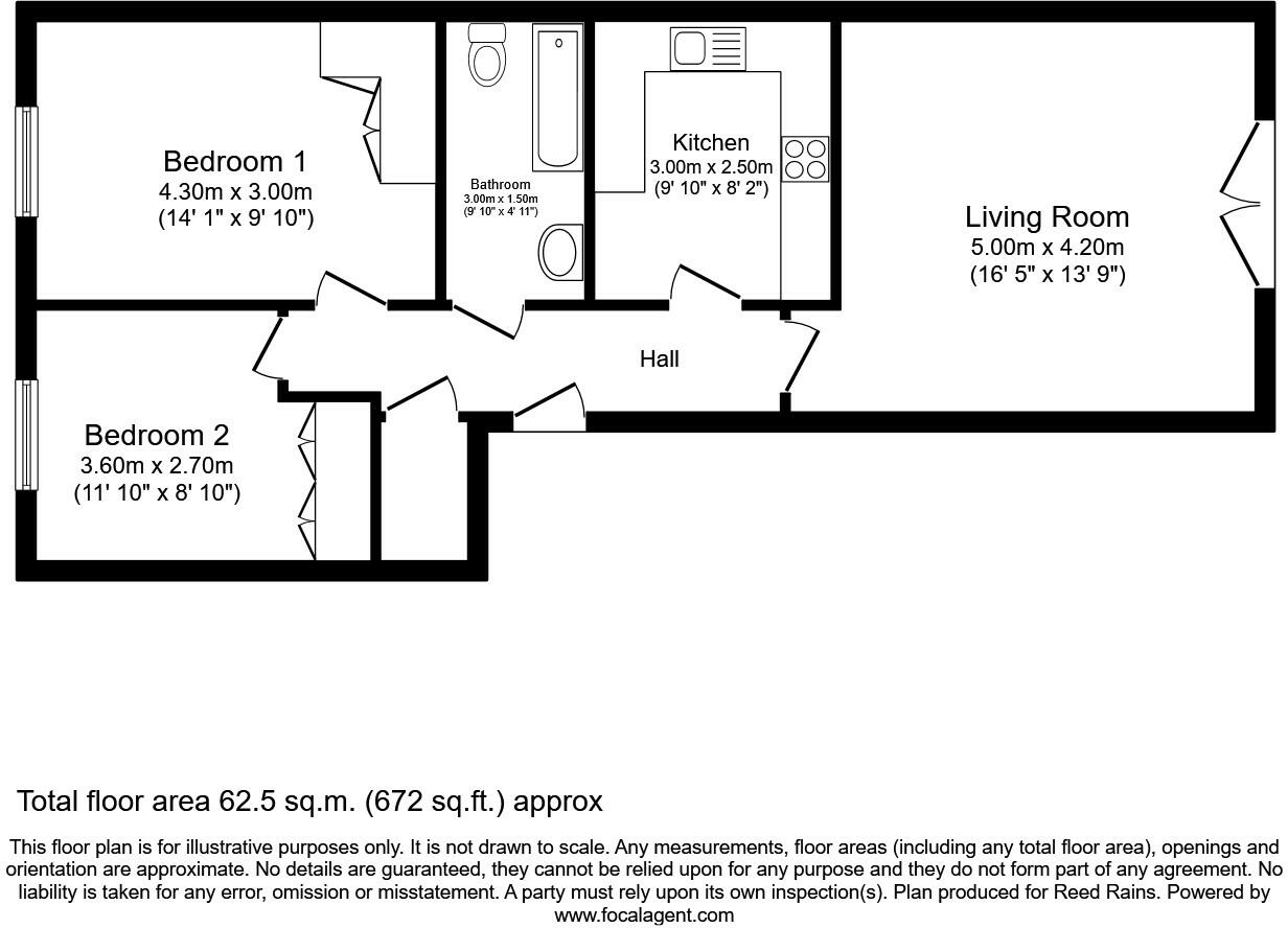
First-floor two-bedroom apartment, circa 672 sq ft
No onward chain — quick sale potential
Allocated off-street parking plus visitor spaces
Separate modern kitchen with integrated appliances
Electric storage heating — potentially higher running costs
Leasehold tenure — confirm lease length and charges
Double-glazed, built 2003–2006, low-maintenance exterior
Close to amenities, good schools, and York city centre
This two-bedroom first-floor apartment in the Sovereign Park development offers a practical, well-presented home ideal for a first-time buyer seeking easy access to York. The layout includes a separate modern kitchen with integrated appliances, a comfortable living room with a balcony and pleasant communal grounds, and two naturally bright bedrooms. Built in the mid-2000s, the building benefits from double glazing and contemporary construction standards.
Key practical strengths include allocated off-street parking, proximity to local shops, schools and the York ring road, and a no onward chain sale for a quicker move. The flat sits within a very affluent area classification and has fast broadband and excellent mobile signal, making it suitable for home working and everyday family life.
Buyers should note this is a leasehold property and heating is by electric storage heaters, which can be more costly than mains gas. The apartment is an average size (circa 672 sq ft) so it suits buyers seeking manageable space rather than large family accommodation. Service/management charges and lease details are not provided here and should be checked prior to offer.
Overall, this is a tidy, contemporary flat with sensible running costs for council tax and easy access to York city centre. It will appeal to those wanting a low-maintenance starter home or a buy-to-let opportunity in a well-connected, popular development.
2 bedroom flat for sale in Monarch Way, Sovereign Park, York, YO26 — £190,000 • 2 bed • 1 bath • 663 ft²
2 bedroom flat for sale in Foss House, Lowther Street, York, YO31 — £200,000 • 2 bed • 1 bath • 602 ft²
2 bedroom apartment for sale in Dukes Court, York, YO26 — £170,000 • 2 bed • 1 bath • 612 ft²
2 bedroom apartment for sale in Chester House, Darwin Close, York, YO31 — £170,000 • 2 bed • 1 bath • 519 ft²
2 bedroom apartment for sale in Miller Road, Water Lane, York, YO30 — £217,500 • 2 bed • 1 bath • 651 ft²
2 bedroom flat for sale in Curlew House, Elvington Terrace, York, YO10 — £205,000 • 2 bed • 2 bath • 686 ft²


































