Large plot with garage and long driveway, ideal for family living and renovation.
For sale at auction; no onward chain
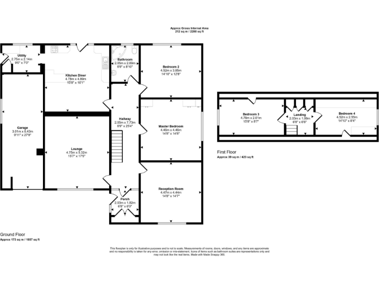
This substantial five-bedroom detached bungalow sits on a very large plot in Catchgate, Stanley, offered for sale at auction and available with no onward chain. The house is freehold and provides a generous kitchen/diner, bright lounge with a bow window, utility room and extensive wrap-around gardens — strong selling points for families wanting space and outdoor living.
Internally the layout includes three ground-floor double bedrooms, a family bathroom and two additional double rooms on the upper level with eaves storage. The property totals about 2,280 sq ft, giving flexible room for home offices, hobby space or multigenerational use. Heating is by mains gas boiler and radiators; double glazing is already installed (pre-2002).
Buyers should note there is only one bathroom for five bedrooms and some exterior wear consistent with a home built in the late 1960s/1970s. The house will likely benefit from modernisation and updating in parts, offering renovation potential that could add value. Council Tax is Band E and the surrounding area shows higher deprivation scores, which may affect local services and resale considerations.
Practical advantages include a long driveway leading to a single garage, multiple access points to the garden, excellent mobile signal and fast broadband — useful for remote working. The property is close to local shops, bus routes and several primary schools rated Good by Ofsted, though nearby secondary provision is mixed. Sold via auction under conditional terms — suitable for buyers prepared to proceed on that basis.
2 bedroom bungalow for sale in Kinross Drive, Stanley, DH9 — £85,000 • 2 bed • 1 bath • 436 ft²
2 bedroom terraced bungalow for sale in Lenin Terrace, Stanley, Durham, DH9 6LW, DH9 — £63,000 • 2 bed • 1 bath • 524 ft²
2 bedroom bungalow for sale in Kinross Drive, Stanley, County Durham, DH9 — £85,000 • 2 bed • 1 bath
3 bedroom detached bungalow for sale in Bells Folly, Potters Bank, Durham, DH1 — £550,000 • 3 bed • 2 bath • 1604 ft²
4 bedroom bungalow for sale in Northumbria Place, Stanley, County Durham, DH9 — £289,995 • 4 bed • 2 bath • 1497 ft²
4 bedroom bungalow for sale in Causey Way, Stanley, DH9 — £425,000 • 4 bed • 2 bath • 1802 ft²


















































































