Large extended home ideal for multigenerational living and entertaining.
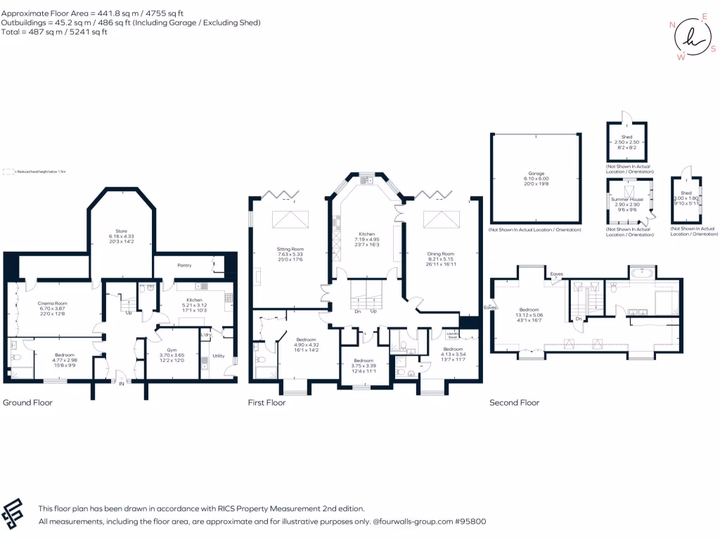
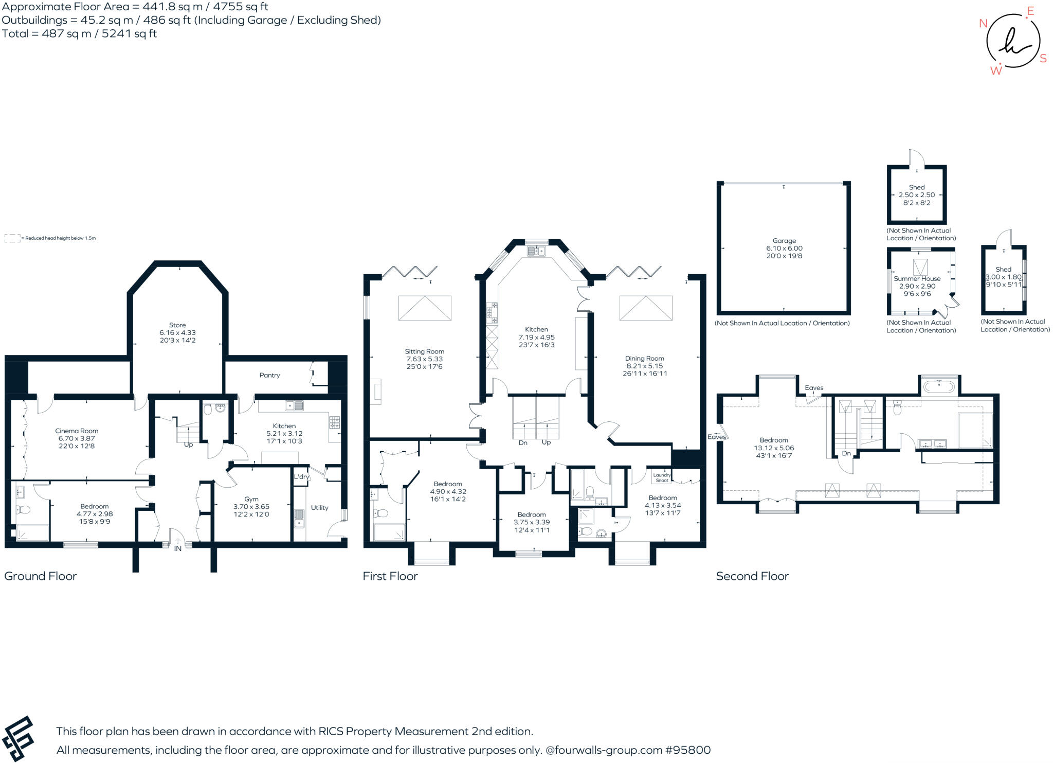
Over 4,700 sq ft across three floors
A substantial detached family home offering over 4,700 sq ft of versatile living across three floors. The property has been significantly extended and remodelled by the current owners to create generous reception space, two fitted kitchens, four en-suite bedrooms and a spectacular loft conversion forming a luxurious principal suite with dressing room.
Finished to a high standard and well-equipped for modern family life, highlights include bi-fold doors and glazed lanterns flooding the extended sitting and dining rooms with light, a south-facing landscaped garden and integrated air conditioning to the dining room and principal bedroom. Practical features include a double garage, large driveway parking for multiple cars, home studio/office, CCTV and a whole-house AV system with multi-room distribution.
The layout suits growing families, multigenerational households or buyers looking for dedicated home-working space. The generous plot and paved terrace make this an excellent option for entertaining and outdoor living. Constructed in the late 1990s/early 2000s, the house benefits from modern double glazing and mains gas heating via boiler and radiators.
Buyers should note the scale and complexity of the property: ongoing maintenance and running costs will be above average for the area, and council tax is described as quite expensive. The house’s size and multiple levels mean it may not suit purchasers seeking a low-maintenance home.
6 bedroom detached house for sale in Kintbury Close, Fleet, GU51 — £975,000 • 6 bed • 4 bath • 2924 ft²
4 bedroom detached house for sale in Kintbury Close, Fleet, GU51 — £800,000 • 4 bed • 3 bath • 2119 ft²
5 bedroom detached house for sale in Hollytrees, Church Crookham, GU51 — £1,150,000 • 5 bed • 4 bath • 3484 ft²
5 bedroom detached house for sale in Hawkley Way, Fleet, GU51 — £775,000 • 5 bed • 3 bath • 1922 ft²
5 bedroom house for sale in West Hill Gardens, Fleet, GU51 — £1,575,000 • 5 bed • 3 bath • 3440 ft²
5 bedroom detached house for sale in Chawton Close, Fleet, Hampshire, GU51 — £830,000 • 5 bed • 3 bath • 2154 ft²






































































