Large four-bedroom maisonette with terraces, close to transport and top schools.
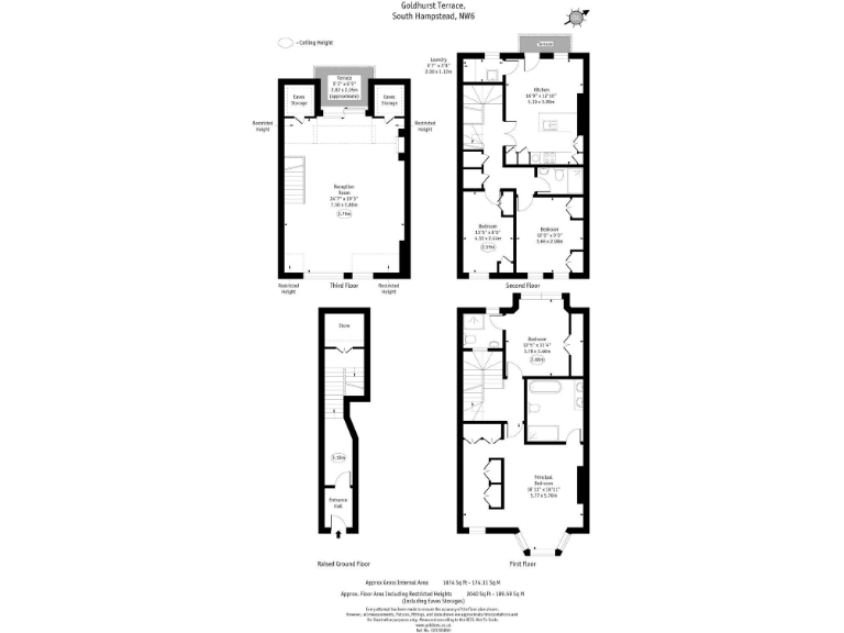
Over 2,000 sq ft of internal living space
Set across more than 2,000 sq ft of handsome period accommodation, this four-bedroom maisonette combines grand proportions with practical family living. The original main entrance leads into a bright, dual-aspect 24' x 19' reception room that opens onto a West-facing terrace, plus a kitchen/dining area with a second West-facing balcony — both excellent for evening light and outdoor meals.
Accommodation includes four bedrooms and three bathrooms across a multi-storey layout, offering flexibility for family life, a home office or guest suites. The property benefits from a long lease and share of freehold, and sits 0.1 miles from Finchley Road station (Jubilee/Metropolitan) and Waitrose, putting transport and shops within an easy walk. South Hampstead High School for Girls is only 0.2 miles away.
Practical considerations: the building dates from 1900–1929 and has solid brick walls with no assumed cavity insulation, so energy upgrades may be needed. Council tax is described as quite expensive, and local crime levels are high — factors to weigh for family buyers. Heating is mains gas via boiler and radiators.
This maisonette will suit buyers seeking generous, characterful living space in a prime South Hampstead location who are prepared to invest in thermal improvements and accept higher local running costs. Its size, layout and proximity to top schools and transport make it a rare opportunity in this area.
4 bedroom flat for sale in Goldhurst Terrace, London, NW6 — £1,695,000 • 4 bed • 3 bath • 1990 ft²
3 bedroom maisonette for sale in West End Lane, West Hampstead, NW6 — £1,095,000 • 3 bed • 2 bath • 1342 ft²
3 bedroom apartment for sale in Canfield Place, South Hampstead, NW6 — £795,000 • 3 bed • 2 bath • 1369 ft²
2 bedroom apartment for sale in Lambolle Place, London, NW3 — £1,425,000 • 2 bed • 2 bath • 1275 ft²
4 bedroom flat for sale in Goldhurst Terrace, South Hampstead NW6 — £1,595,000 • 4 bed • 3 bath • 1875 ft²
3 bedroom duplex for sale in Goldhurst Terrace, South Hampstead, , NW6 — £990,000 • 3 bed • 3 bath • 1217 ft²






























































