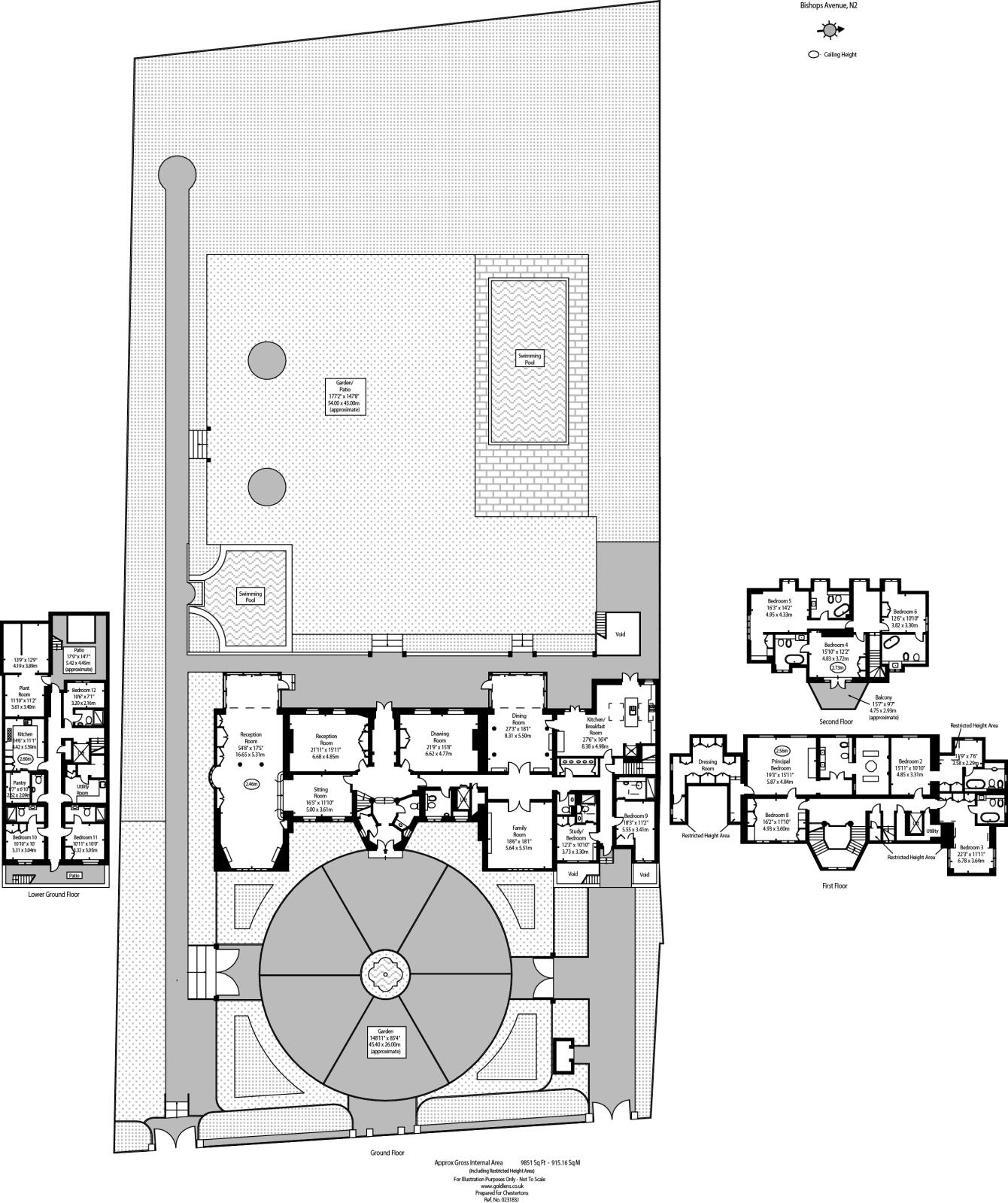
**Standout Features:**
- Grand 12-bedroom, 11-bathroom detached mansion
- Expansive grounds with a landscaped garden
- Impressive 53' ballroom ideal for grand gatherings
- Swimming pool on-site
- Six spacious reception areas for entertaining
- Ample off-street parking
- Historical Edwardian architectural design with high ceilings
**Summary:**
Discover a unique opportunity to own an exceptional detached mansion on the prestigious Bishops Avenue in Hampstead. This grand residence, with its twelve generous bedrooms and eleven luxurious bathrooms, is perfect for large families or those who love to entertain. The centerpiece is a magnificent 53' ballroom that beckons for celebrations and gatherings, complemented by six expansive reception areas. Nestled within extensive private grounds, this property offers peace and privacy, featuring a beautifully landscaped garden and a swimming pool for relaxation.
With a total space of 19,154 square feet, this mansion represents both luxury and comfort. A blend of historic charm and modern living, the high ceilings and elegant brickwork create a stately ambiance. While the intricate architectural features stand out, the expansive plot offers renovation potential for those looking to personalize their living space. This exclusive property is located in an affluent area with access to outstanding local amenities, including top-ranked schools and recreational facilities, making it ideal for families or investors looking for rental potential. Act quickly, as opportunities like this on Bishops Avenue are rare!
12 bedroom detached house for sale in The Bishops Avenue, Hampstead Garden Suburb, N2 — £20,000,000 • 12 bed • 11 bath • 9851 ft²
11 bedroom detached house for sale in The Bishops Avenue, London, N2 — £20,000,000 • 11 bed • 11 bath • 9854 ft²
8 bedroom house for sale in The Bishops Avenue, Hampstead Heath, London, N2, United Kingdom, N2 — £12,250,000 • 8 bed • 9 bath • 10697 ft²
8 bedroom detached house for sale in The Bishops Avenue, London, N2 — £20,000,000 • 8 bed • 6 bath • 7901 ft²
6 bedroom detached house for sale in The Bishops Avenue, London, N2 — £8,750,000 • 6 bed • 7 bath • 13444 ft²
8 bedroom detached house for sale in The Bishops Avenue, East Finchley, N2 — £12,250,000 • 8 bed • 8 bath • 10623 ft²














































































































































