Large, light-filled family home with garage and excellent transport links.
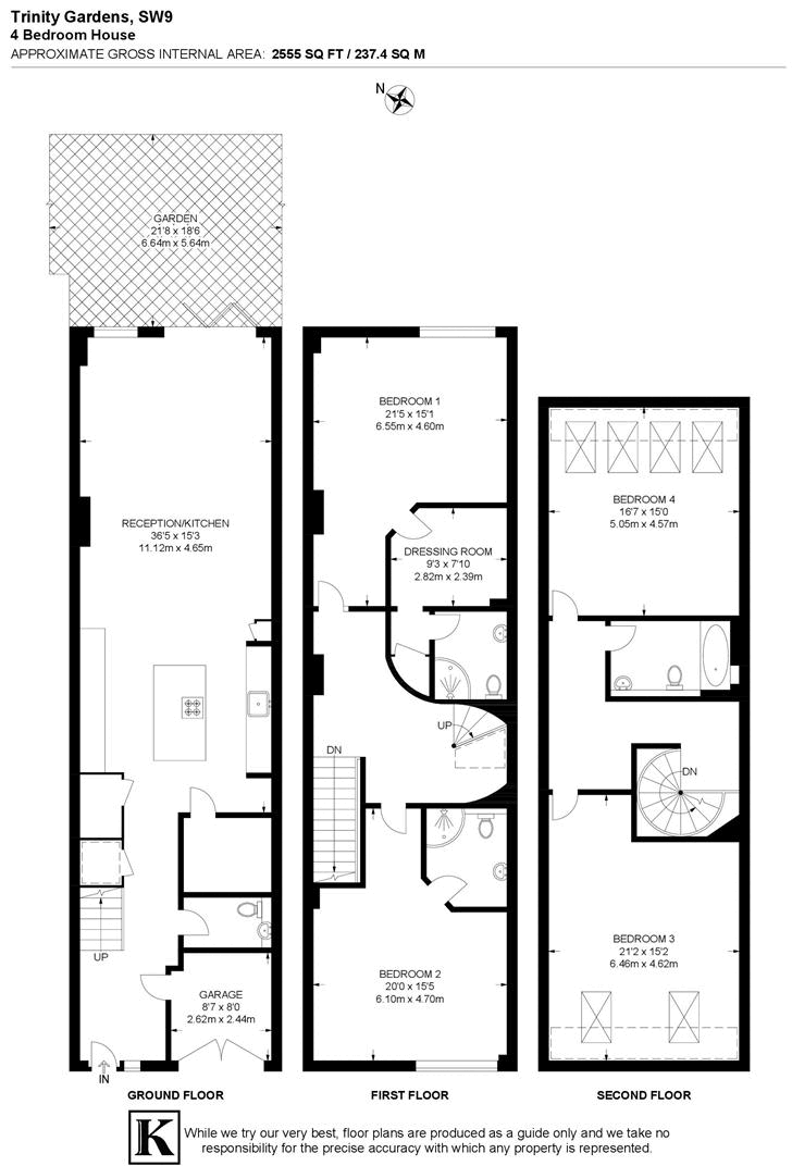
Four double bedrooms with three bathrooms plus separate ground-floor WC
Set over multiple levels and extending to more than 2,500 sq ft, this contemporary end-of-terrace house is arranged for family life and flexible living. The heart of the home is an 11-metre-plus open-plan kitchen and reception room with soaring ceilings and near wall-height glazing that floods the space with light and opens directly onto a low‑maintenance paved garden. Four double bedrooms and three bathrooms give clear separation between living and sleeping zones, useful for families or multi-occupancy.<br><br>Practical benefits include an integrated private garage providing rare off-street parking in Brixton and freehold tenure. The property sits on a quiet cul-de-sac around a garden square with a friendly local pub and is a six-minute walk from Brixton tube (Victoria Line), placing central London transport links within easy reach.<br><br>Buyers should note material drawbacks plainly: the immediate area records very high crime levels and is classed as deprived, which may affect long-term resale or rental considerations. The property’s construction era (circa 1967–75) and cavity walls with no confirmed insulation may mean higher heating costs and potential improvements to make the home more energy efficient. Council tax is described as expensive.<br><br>This is a substantial, light-filled family home in a tucked-away Brixton enclave with strong transport links and abundant local amenities. It will particularly suit buyers seeking generous internal space and parking who are comfortable with the neighbourhood’s urban character and who may wish to invest further in energy or security improvements.
2 bedroom terraced house for sale in Trinity Gardens, Brixton, SW9 — £1,100,000 • 2 bed • 1 bath • 1120 ft²
4 bedroom terraced house for sale in Kellett Road, London, SW2 — £1,400,000 • 4 bed • 2 bath • 1971 ft²
5 bedroom terraced house for sale in Blenheim Gardens, London, SW2 — £1,100,000 • 5 bed • 3 bath • 1906 ft²
4 bedroom terraced house for sale in Styles Gardens, London, SW9 — £700,000 • 4 bed • 3 bath • 870 ft²
4 bedroom house for sale in Santley Street, SW4 — £1,175,000 • 4 bed • 2 bath • 1664 ft²
4 bedroom flat for sale in Ferndale Road, Brixton, SW9 — £575,000 • 4 bed • 2 bath • 1270 ft²


















































































