Practical family home with good transport links and low running costs.
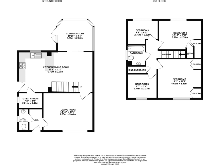
- Four bedrooms: two doubles and two singles
- Large kitchen/dining room and separate utility
- Private rear garden, patio and raised timber deck
- Solar panels help reduce energy bills (Energy Rating C)
- Driveway parking for 2–3 cars plus single rear garage
- One family bathroom (single shower) for four bedrooms
- Constructed c.1976–1982; some modernisation may be desired
- Freehold, Priory School catchment; short walk to shops and station
A well-proportioned four-bedroom semi-detached home in a convenient Worle location, tailored to family life and commuter convenience. The house benefits from a large kitchen/dining room, a private rear garden with decking, and a single garage with additional driveway parking for 2–3 cars. Solar panels reduce running costs and double glazing plus gas central heating provide practical, efficient living.
The layout works for growing families: entrance hall, cloakroom, sitting room, generous kitchen/diner, utility and conservatory on the ground floor, with two double and two single bedrooms upstairs and a family bathroom with shower. The property sits within the Priory School catchment and is a short, level walk to local shops, bus routes, Worle High Street and the train station.
Built in the late 1970s/early 1980s and offered freehold, the home presents sensible, well-balanced accommodation but is compact at around 969 sq ft. There is scope to modernise certain finishes to suit contemporary tastes. Overall this is a practical, cost-conscious family home in a very accessible suburb of Weston-super-Mare.
3 bedroom semi-detached house for sale in Coralberry Drive, Worle - CORNER PLOT , BS22 — £310,000 • 3 bed • 1 bath • 765 ft²
4 bedroom semi-detached house for sale in Cormorant Close, BS22 — £318,500 • 4 bed • 2 bath • 776 ft²
3 bedroom semi-detached house for sale in New Bristol Road, Worle, BS22 — £300,000 • 3 bed • 2 bath • 885 ft²
4 bedroom semi-detached house for sale in Trenleigh Drive, Worle, Weston-super-Mare, BS22 — £290,000 • 4 bed • 2 bath • 1063 ft²
4 bedroom semi-detached house for sale in Canterbury Close, Worle - CONVERTED GARAGE, BS22 — £300,000 • 4 bed • 1 bath • 1046 ft²
3 bedroom semi-detached house for sale in High Street, Worle, BS22 — £343,000 • 3 bed • 1 bath • 756 ft²


































































































