Large garden, parking and renovation potential in desirable South Croydon.
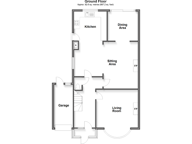
4 bedrooms with flexible reception rooms and ample floor area (approx 1,163 sq ft)
Tudor‑Revival style exterior; period character with bay windows
Large rear garden and driveway for three cars plus garage
Single family bathroom—may need additional facilities for four bedrooms
Kitchen and bathroom dated; property requires renovation throughout
Offered by Modern Auction; undisclosed reserve and buyer fees apply
Reservation fee payable: 4.2% (min £6,000) plus £349 buyer pack fee
Freehold, low crime area, fast broadband and excellent mobile signal
This four-bedroom, semi‑detached house on Victoria Avenue is a roomy family home with flexible living space and a large rear garden. The property is freehold, offers a garage plus driveway for three cars, and sits in a very affluent, low-crime area with good connectivity and fast broadband.
The interior requires updating: the kitchen and bathroom are dated and the house is offered by Modern Auction, so buyers should allow time for due diligence and refurbishment costs. There is a single family bathroom for four bedrooms, which will be a consideration for growing families or sharers.
Auction sale terms are material: the property is subject to an undisclosed reserve, a non‑refundable reservation fee (4.2% of the sale price, minimum £6,000) and additional buyer fees. Purchasers must complete within 56 days of contract receipt and verify funding and ID with the auctioneer.
For buyers seeking renovation potential in South Croydon, this home offers space, parking and a sizeable garden in a desirable neighbourhood. Expect refurbishment work and to budget for fees and any survey-identified repairs before bidding.
4 bedroom terraced house for sale in Cecil Road, Croydon, CR0 — £400,000 • 4 bed • 2 bath • 1328 ft²
3 bedroom semi-detached house for sale in Tupwood Lane, Caterham, Surrey, CR3 — £450,000 • 3 bed • 2 bath • 876 ft²
3 bedroom semi-detached house for sale in Milton Road, Caterham, Surrey, CR3 — £295,000 • 3 bed • 1 bath • 877 ft²
3 bedroom semi-detached house for sale in Famet Close, Purley, CR8 — £400,000 • 3 bed • 1 bath • 945 ft²
5 bedroom detached house for sale in 23 Shirley Hills Road, Croydon, Surrey, CR0 5HQ, CR0 — £1,200,000 • 5 bed • 1 bath • 3586 ft²
2 bedroom semi-detached house for sale in Edridge Road, Croydon, Surrey, CR0 — £375,000 • 2 bed • 1 bath • 915 ft²










































































