Spacious character home on a private estate with half-acre gardens.
Large secluded gardens approx. half an acre, south-facing rear aspect
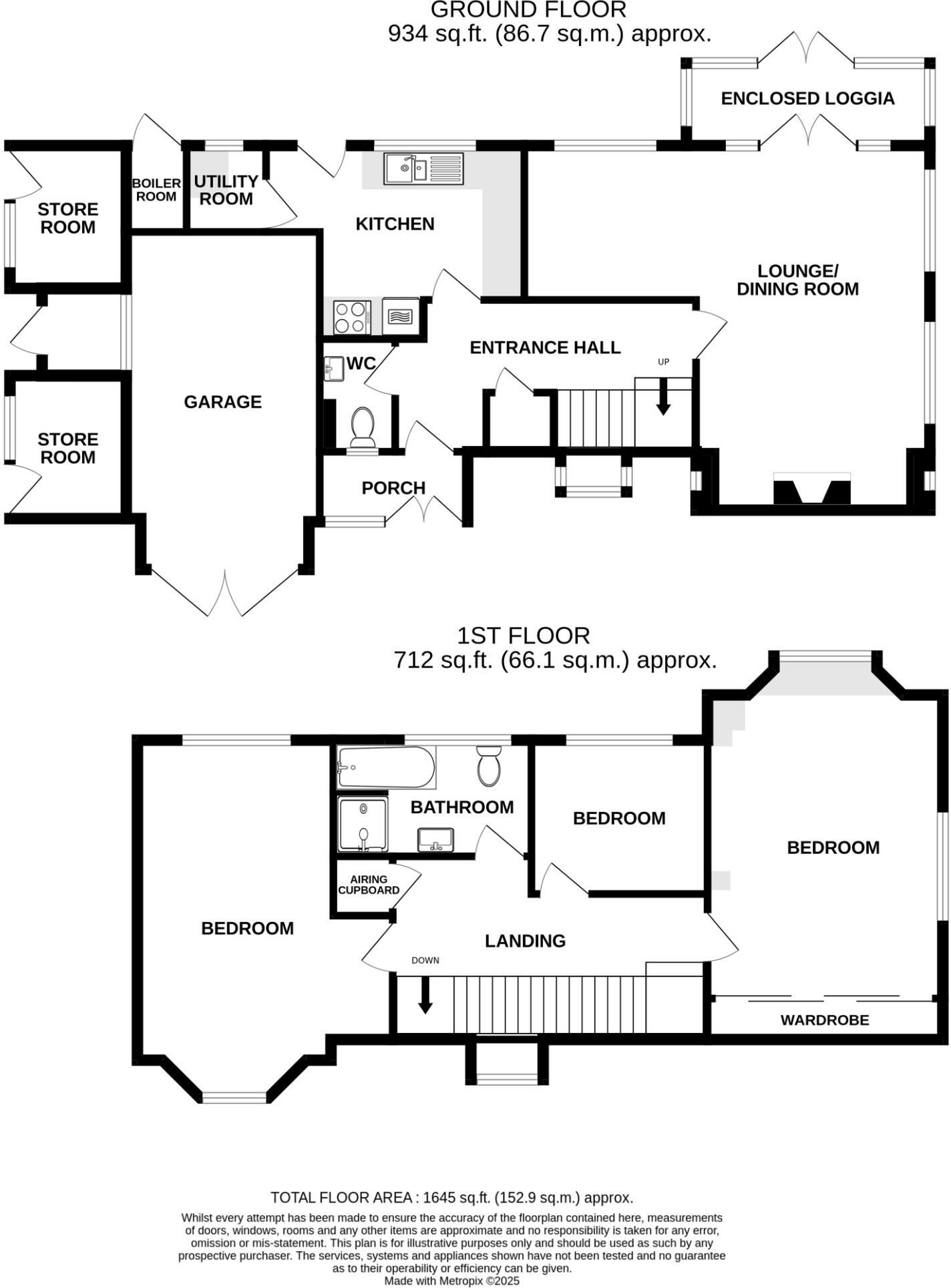
Generous 21'2 x 20'4 double-aspect living room with inglenook fireplace
Modern fitted kitchen and small utility room, practical family layout
Large integral garage, private gravel driveway, generous off-road parking
Three bedrooms served by a spacious refitted bath/shower room
Built in 1930 with original features; scope for cosmetic updating
EPC rating E; higher energy costs possible without further upgrades
Council Tax Band G; running costs likely above average
Set within the private Friston Estate and bordering the South Downs National Park, this distinctive 1930s detached home offers generous, characterful living and exceptional outdoor space. The double-aspect living room features an inglenook fireplace and leads to an enclosed loggia overlooking beautifully established, level gardens of about half an acre — rare for the area and ideal for gardening, entertaining or children to play. The kitchen has been modernised and includes a small utility room, while many original features remain, including exposed beams and leaded-light windows.
Accommodation is arranged over two floors with three double bedrooms served by a spacious refitted bath/shower room. Practical improvements include gas central heating and replacement double glazing, and the property is offered chain free for a quicker sale. Off-street parking is generous via a private gravel driveway with access to a large integral garage and two brick store rooms, supporting hobbyists or storage needs.
Buyers should note the property has an EPC rating of E and falls in Wealden Council Tax Band G, which may affect running costs. The house is substantial and well maintained but presents scope for cosmetic updating or further modernisation to enhance energy efficiency and personalise the interior. Its location on a quiet private estate with excellent mobile and broadband connectivity suits buyers seeking countryside living within easy reach of Eastbourne and local independent schools.
5 bedroom detached house for sale in The Ridgeway, Friston, Eastbourne, , BN20 — £1,250,000 • 5 bed • 3 bath • 2008 ft²
3 bedroom detached house for sale in The Brow, Friston, Eastbourne, East Sussex, BN20 — £900,000 • 3 bed • 1 bath • 1870 ft²
2 bedroom detached bungalow for sale in The Brow, Friston, Eastbourne, East Sussex, BN20 — £550,000 • 2 bed • 1 bath • 1352 ft²
4 bedroom detached house for sale in Warren Lane, Friston,, BN20 — £1,350,000 • 4 bed • 2 bath • 2478 ft²
3 bedroom detached house for sale in Michel Dene Road, East Dean, BN20 — £700,000 • 3 bed • 1 bath • 1195 ft²
5 bedroom detached house for sale in The Link, East Dean , BN20 — £875,000 • 5 bed • 1 bath • 1525 ft²










































































