**Standout Features:**
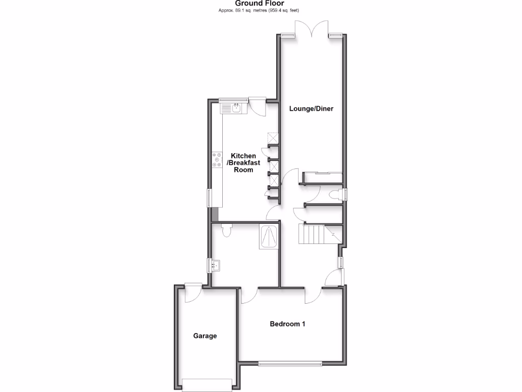
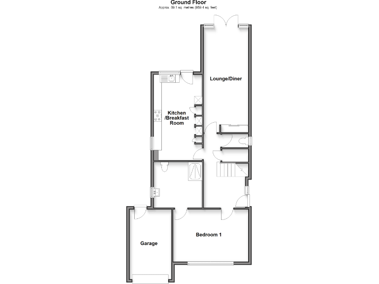
- Beautifully refitted modern kitchen with large breakfast area
- Generous rear garden, perfect for families
- Detached property with garage and off-street parking
- Larger-than-average en-suite with potential for additional bath
- Prime location near Wickford town center and mainline railway station
**Notable Downsides:**
- Moderate crime rate reputation
- Solid brick walls with no insulation (assumed)
- Property requires verification of tenure lease and fittings
Discover the charm of this fully detached chalet-style home, ideally located just a short walk from Wickford Town Centre and the mainline railway station. The beautifully refitted kitchen is a standout feature, boasting a spacious breakfast area and direct access to the expansive rear garden—perfect for outdoor family activities and sunny afternoons.
With three comfortable bedrooms, including a generous downstairs suite with an en-suite shower room, there’s ample room for both family living and future renovations. The en-suite offers the exciting possibility of adding a bath, creating a luxurious retreat.
The property further benefits from a garage and off-street parking, ensuring convenience and security. While the local area has an above-average crime rate, the richness of the community, combined with excellent schools nearby—such as the outstanding Wickford Church of England School—makes this home a sound investment for families.
Don’t miss out on the chance to make this fantastic property your own, where comfort meets potential in a highly sought-after location!















































































