Spacious renovated Georgian house with garden, moments from King’s Cross transport links..
Freehold five-storey Georgian townhouse, 2,448 sq ft
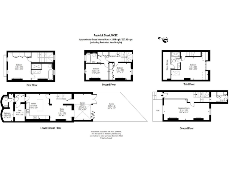
A substantial five-storey Georgian freehold thoughtfully renovated to a high standard, this 4-bedroom, 3-bathroom house offers generous family living across 2,448 sq ft. The raised ground double reception, high ceilings and oak floors deliver period character, while the bespoke kitchen, garden room and landscaped walled garden create contemporary indoor–outdoor flow. Underfloor heating and a modern boiler add comfort; the property has an EPC rating of C.
Situated just a short walk from King’s Cross St. Pancras, the location gives exceptional transport links (Underground and Eurostar) and immediate access to the restaurants, bars and workplaces within the regenerated King’s Cross. Nearby Bloomsbury, Clerkenwell and Islington broaden local amenities and schooling options, including several highly rated primary and secondary schools.
Important practical points: the house sits on a relatively small plot and the brick walls are assumed to be solid with no installed insulation, which may affect thermal performance despite double glazing (install date unknown). Council Tax is in Band G and described as quite expensive. The surrounding area has a high recorded crime rate and some wider area deprivation, which should be weighed against the central location and transport convenience.
This home suits a family seeking generous accommodation and period charm with modern finishes close to major transport hubs, or buyers looking to secure a central freehold with immediate move-in quality. Photos used in marketing were taken in September 2020; prospective viewers should confirm current condition at viewing.
4 bedroom house for sale in Platt Street, St Pancras, London, NW1 — £1,650,000 • 4 bed • 3 bath • 1674 ft²
6 bedroom town house for sale in John Street, Bloomsbury, London, WC1N — £5,995,000 • 6 bed • 4 bath • 4641 ft²
5 bedroom terraced house for sale in Frederick Street, London, WC1X — £2,500,000 • 5 bed • 3 bath • 2576 ft²
3 bedroom terraced house for sale in Swinton Street, WC1X — £1,200,000 • 3 bed • 3 bath • 918 ft²
4 bedroom house for sale in St. Pauls Crescent, Camden, NW1 — £1,500,000 • 4 bed • 2 bath • 1613 ft²
3 bedroom terraced house for sale in Great Percy Street, London, WC1X — £1,700,000 • 3 bed • 2 bath • 1447 ft²






































































































