Large rural development plot with planning near Sherborne and easy A303 access.
Outline consent for five open-market new-build dwellings
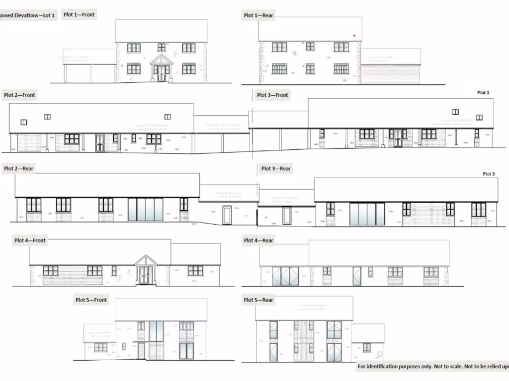
An exceptional rural development opportunity just outside Sherborne, Ciderhouse Farm extends to approximately 0.8 hectares (1.98 acres) with outline permission for five open-market new-build homes plus detailed consent to convert a former airfield fire station into a single dwelling. The site benefits from clear planning status, straightforward road access via the nearby A303, fast broadband, very low local crime and attractive Dorset countryside views.
The offering is flexible: available as a whole for £950,000 or in two lots (Lot 1 £650,000; Lot 2 £300,000). Note that the sale of Lot 2 will not complete until after Lot 1 has sold unless the whole site is purchased. Buyers should budget for the agreed infrastructure works tied to the permissions and allow for site servicing and build-out costs.
This parcel will suit developer-builders or investors targeting a small rural scheme with planning in place and good market appeal to buyers seeking village-edge living near Sherborne. The local area is affluent with established schools nearby, making the eventual houses attractive to families and professionals. Tenure is stated as unknown and any purchaser should verify tenure, statutory covenants and local authority requirements before exchange.
Overall, this is a rare opportunity to acquire a sizeable countryside plot with planning consents in place. The site’s positives — permissions, location, and scale — are balanced by practical considerations: infrastructure works, the conditional sequencing of Lot 2, and the usual rural-service planning constraints.
Plot for sale in Lot 1 - Ciderhouse Farm, Sigwells, Nr. Sherborne, Dorset, DT9 — £650,000 • 1 bed • 1 bath
Plot for sale in Lot 2 - Ciderhouse Farm, Sigwells, Nr. Sherborne, Dorset, DT9 — £300,000 • 1 bed • 1 bath
Plot for sale in Old Sherborne Road, Dorchester, DT2 — £300,000 • 1 bed • 1 bath
Plot for sale in Over Compton, Sherborne, Dorset, DT9 — £495,000 • 1 bed • 1 bath • 4694 ft²
Land for sale in South View, West Camel Road, Queen Camel, Yeovil, BA22 — £650,000 • 1 bed • 1 bath
4 bedroom detached house for sale in Tiley, Middlemarsh, SHERBORNE, Dorset, DT9 — £450,000 • 4 bed • 1 bath


































































