Victorian detached house built 1876, lovingly modernised throughout
A substantial Victorian detached house, recently renovated throughout, set on a generous plot in sought-after Penketh. The property blends original period detail — mosaic hallway flooring, high ceilings and ornate cornices — with a large, contemporary open-plan kitchen and living area designed for entertaining.
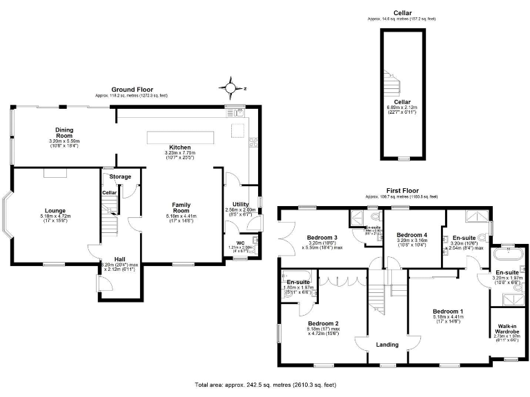
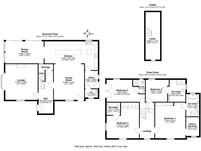
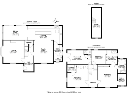
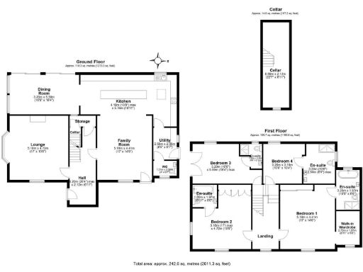
The house offers four large bedrooms and four bathrooms, including en-suites to bedrooms two, three and four and a principal suite with walk-in wardrobe and standalone bath. Three reception rooms, a sizeable kitchen with island, utility, cellar and plentiful storage provide flexible family living across multiple floors.
Outside, the wide driveway accommodates many vehicles and the extensive, private rear garden gives scope for al fresco dining and children's play. Practical points: the home is freehold, broadband is available up to 132Mb, flood risk is low and the area is affluent with very low crime.
Considerations: the property dates from 1876, so ongoing maintenance and specialist care for period features are to be expected despite the recent refurbishment. Council tax is described as expensive, which will affect running costs.































































































































































