SK13 1NF - 2 bedroom end of terrace house for sale in Manchester Road,…

View on Property Piper

2 bedroom end of terrace house for sale in Manchester Road, Tintwistle, SK13

Summary - 14A, MANCHESTER ROAD SK13 1NF

2 bed 1 bath End of Terrace

**Standout Features:**
- Four-level end-terrace stone property
- Spacious lounge with character fireplace
- Dining kitchen equipped with appliances
- Basement currently used as laundry/utility room
- Converted loft room ideal for office or relaxation
- Off-street parking for multiple vehicles
- Additional land available for rent at £30 per year
- Low council tax (Band A)
- Chain-free sale

This characterful Victorian end-terrace property offers the perfect blend of modern comfort and traditional charm, making it an excellent opportunity for families or first-time buyers looking for affordable living. Spanning four floors, the home features a welcoming lounge with a striking fireplace and a contemporary dining kitchen with all essential appliances included. The basement provides valuable utility space, while the loft has been converted into a versatile room that can serve as an office or cozy sitting area.

Enjoy ample off-street parking at the rear, plus the unique option to rent an additional allotment plot for just £30 annually—ideal for gardening enthusiasts. Conveniently located near local amenities, schools, and green spaces, this home is both functional and welcoming. Although the property may require some minor updates, it presents fantastic renovation potential for the right buyer. With its unique features and inviting layout, don’t miss the chance to make this your own—properties like this don’t stay on the market for long!

Property Details

Image Descriptions

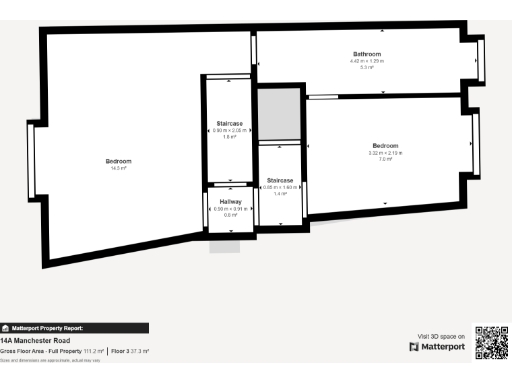
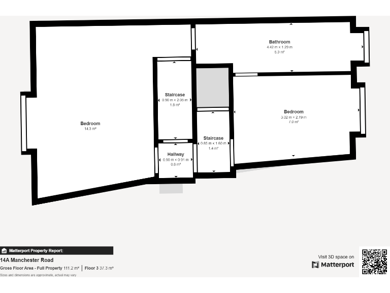
Floorplan Description

Rooms

Textual Property Features

Detected Visual Features

EPC Details

Nearby Schools

Nearest Bars And Restaurants

,,,,}

Nearest General Shops

,,}

Nearest Grocery shops

,,}

Nearest Supermarkets

,,}

Nearest Religious buildings

,,}

Nearest Medical buildings

,,,}

Nearest Airports

}

Nearest Leisure Facilities

,,,,}

Nearest Tourist attractions

,,}

Nearest Train stations

,,,,}

Nearest Bus stations and stops

,,,,}

Nearest Hotels

,,}

Tags

Local Market Stats

Similar Properties

Meta

High Res Images

Compatible Images

Low res Images

Thumbnails

Raw Images

High Res Floorplan Images

Compatible Floorplan Images

Low res Floorplan Images

FloorplanImages Thumbnail

Raw Floorplan Images