**Standout Features:**
- Modern 3-bedroom duplex apartment
- Built in 2017 with stylish brick and flint facade
- Spacious, open-plan kitchen/dining area with modern appliances
- Generous dual-aspect sitting room with potential home office space
- Prime location less than a mile from city center
- Allocated off-street parking and ample storage
- Close proximity to Roussillon Park, ideal for families
- EPC Rating: B; Leasehold with 230 years remaining
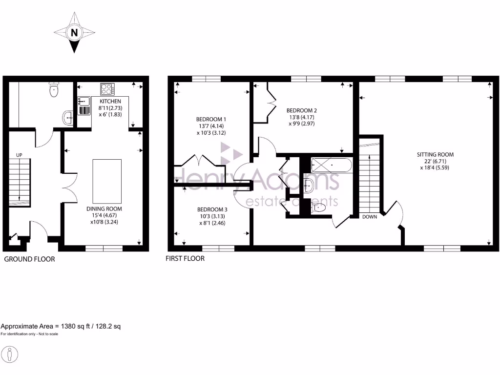
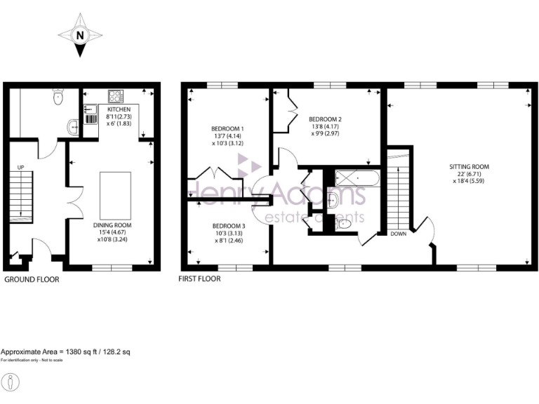
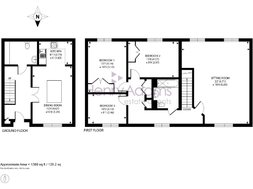
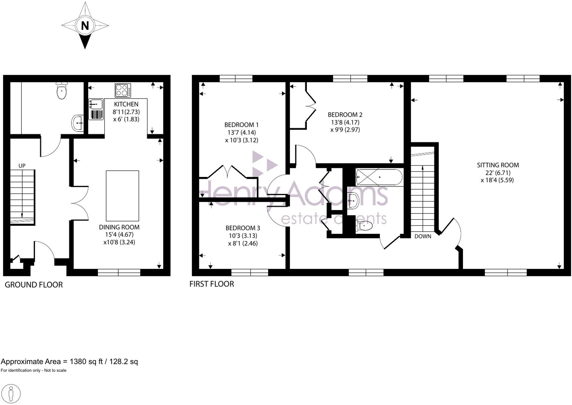
**Summary:**
Discover Roussillon House, an impressive 3-bedroom duplex apartment bathed in natural light and designed for modern living. This contemporary residence, built in 2017, boasts 1,378 sq ft of well-planned space, featuring an inviting entrance hall, a stylish open-plan kitchen/dining area equipped with integrated appliances, and a dual-aspect sitting room perfect for relaxation or as a home office. The three spacious bedrooms come with built-in wardrobes, and a modern family bathroom enhances the home's practicality.
Beyond its aesthetic appeal, this apartment presents an excellent opportunity for families or professionals seeking a low-maintenance dual-level home in a quiet, cosmopolitan neighborhood. Enjoy allocated off-street parking and the convenience of local amenities, while the nearby Roussillon Park offers green space ideal for children and social gatherings. With its convenient city location and attractive design, this is a rare gem you won’t want to miss—explore the potential and comfort this home has to offer!
2 bedroom ground floor flat for sale in Broakes Road, Chichester, PO19 — £315,000 • 2 bed • 1 bath • 828 ft²
2 bedroom apartment for sale in Humphrey Place, Clay Lane, PO19 — £350,000 • 2 bed • 2 bath • 1300 ft²
2 bedroom flat for sale in Lavant Road, Chichester, West Sussex, PO19 — £250,000 • 2 bed • 1 bath • 580 ft²
4 bedroom town house for sale in Whistler Avenue, Chichester, PO19 — £895,000 • 4 bed • 2 bath • 1804 ft²
2 bedroom duplex for sale in Graylingwell Drive, Chichester, West Sussex, PO19 — £259,000 • 2 bed • 2 bath • 611 ft²
2 bedroom apartment for sale in Humphrey Place, Chichester, West Sussex, PO19 — £295,000 • 2 bed • 2 bath • 945 ft²






















































































