Large six-bed period home near South Bay — characterful but needs modernisation.
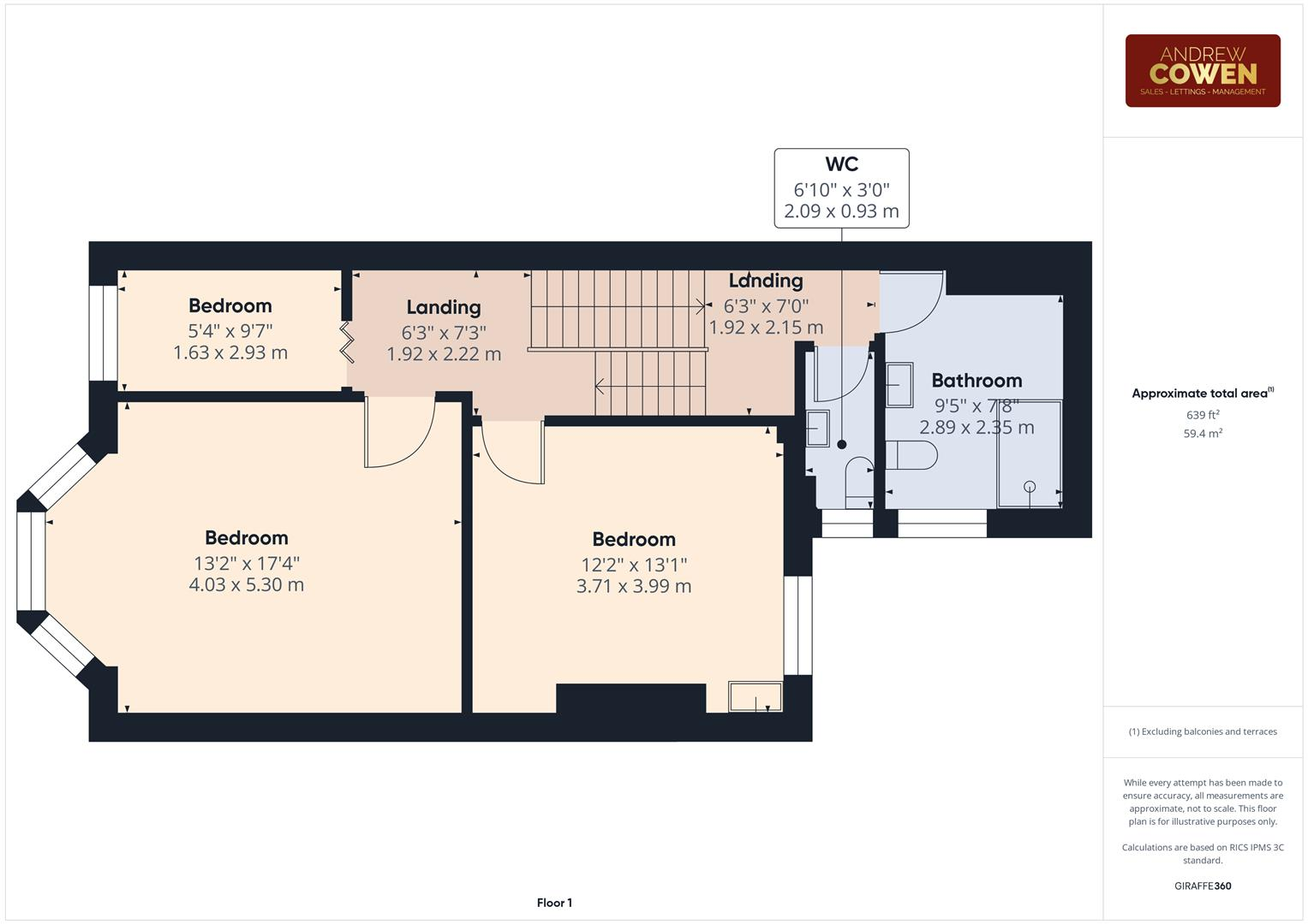
Six bedrooms across three storeys, generous internal room sizes
Spacious six-bedroom mid-terrace with strong period character, high ceilings and original fireplaces. The full-size bay window floods the front reception with natural light and ornate cornicing adds Victorian charm — ideal for families who value space and character close to South Bay’s amenities and beach.
Internally the layout is traditional across three storeys: two reception rooms, kitchen/dining, six bedrooms and two bathrooms. Gas central heating and double glazing (install dates unknown) are in place, and the property offers a private yard for outdoor entertaining. At 1,346 sq ft the home delivers generous room sizes despite a small external plot.
Material issues are clear and priced for renovation. The building is solid brick with no cavity insulation assumed and mainly single-glazed windows historically, so energy performance will be modest. Some updating and modernisation are likely — including possible electrical, insulation and window improvements — and the property is described as an urban fixer-upper.
Practical positives: freehold tenure, no flooding risk, easy access to local shops, schools and transport links, and excellent mobile and fast broadband. Be aware the wider area records above-average crime, so purchasers should check local safety data and factor any security or refurbishment costs into their plans.
6 bedroom house for sale in Granville Square, Scarborough, YO11 — £425,000 • 6 bed • 3 bath • 1979 ft²
6 bedroom link detached house for sale in Tennyson Avenue, Scarborough, YO12 — £280,000 • 6 bed • 3 bath • 1933 ft²
6 bedroom end of terrace house for sale in Norwood Street, Scarborough, North Yorkshire, YO12 — £190,000 • 6 bed • 2 bath • 1851 ft²
5 bedroom town house for sale in Crown Crescent, Scarborough, YO11 — £425,000 • 5 bed • 2 bath • 2000 ft²
5 bedroom terraced house for sale in Prospect Road, Scarborough, North Yorkshire, YO12 — £220,000 • 5 bed • 1 bath • 1548 ft²
6 bedroom semi-detached house for sale in Devonshire Drive, Scarborough, North Yorkshire, YO12 — £295,000 • 6 bed • 2 bath • 1668 ft²






































































































