NE3 4RF - 3 bedroom detached bungalow for sale in The Croft, Kenton,…

View on Property Piper

3 bedroom detached bungalow for sale in The Croft, Kenton, Newcastle upon Tyne, NE3

Summary - 7 THE CROFT KENTON NEWCASTLE UPON TYNE NE3 4RF

3 bed 1 bath Detached Bungalow

**Standout Features:**
- Charming 3-bedroom detached bungalow in a quiet cul-de-sac
- Spacious living room with fireplace and French doors to conservatory
- Delightful west-facing garden with mature planting and patio area
- Detached double garage and neat front driveway
- Close proximity to local amenities and excellent schools
- Chain-free purchase with freehold tenure

**Potential Downsides:**
- Original construction from 1986 may warrant modern updates
- Average-sized bedrooms, which may limit space for larger families

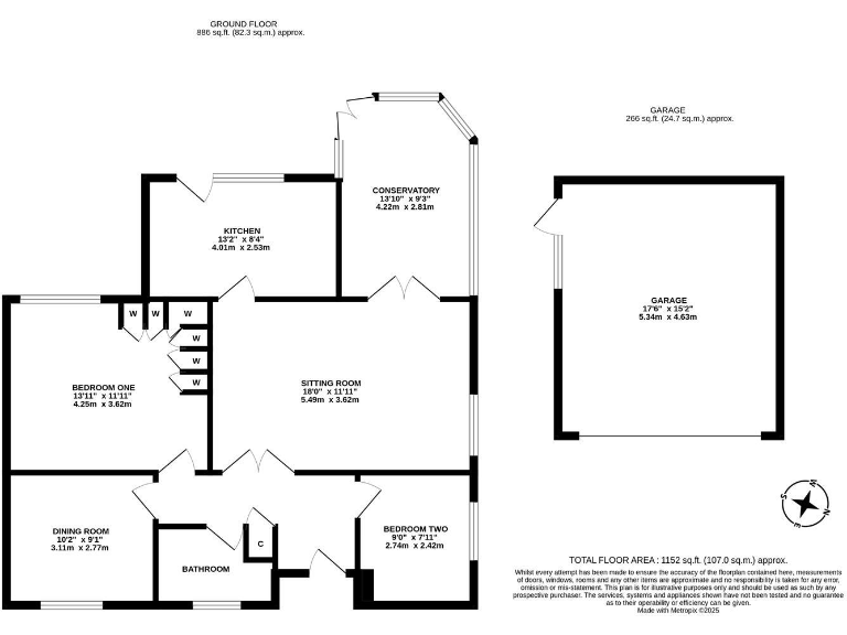
Discover the perfect blend of comfort and convenience in this charming detached bungalow, set in a tranquil cul-de-sac. Offering 1,152 sq ft of well-designed living space, this home features a spacious 18ft sitting room with a cozy fireplace, flowing seamlessly into a bright conservatory. The west-facing garden is a true gem—providing a private retreat perfect for enjoying sunny afternoons or hosting gatherings. With two to three flexible bedrooms and a detached double garage, this property is ideal for families or retirees seeking a low-maintenance lifestyle.

Located just a short walk from Gosforth High Street and essential local amenities, along with access to excellent schools, this bungalow offers a fantastic community feel. While originally built in 1986, the property presents a unique opportunity to embrace single-floor living with room for personalization or future renovations. With no onward chain and a competitively priced offering at £295,000, early viewings are highly encouraged to avoid missing out on this delightful home.

Property Details

Brochure Descriptions

Image Descriptions

Floorplan Description

Rooms

Textual Property Features

Detected Visual Features

EPC Details

Nearby Schools

Nearest Bars And Restaurants

,,,,}

Nearest General Shops

,,}

Nearest Grocery shops

,,}

Nearest Supermarkets

,,}

Nearest Religious buildings

,,}

Nearest Medical buildings

,,,}

Nearest Airports

,}

Nearest Leisure Facilities

,,,,}

Nearest Tourist attractions

,,}

Nearest Train stations

,,,,}

Nearest Bus stations and stops

,,,,}

Nearest Hotels

,,}

Tags

Local Market Stats

Similar Properties

Meta

High Res Images

Compatible Images

Low res Images

Thumbnails

Raw Images

High Res Floorplan Images

Compatible Floorplan Images

Low res Floorplan Images

FloorplanImages Thumbnail

Raw Floorplan Images