Generous plot with double garage and landscaped south-westerly garden.
Far-reaching sea and Downs views from principal rooms
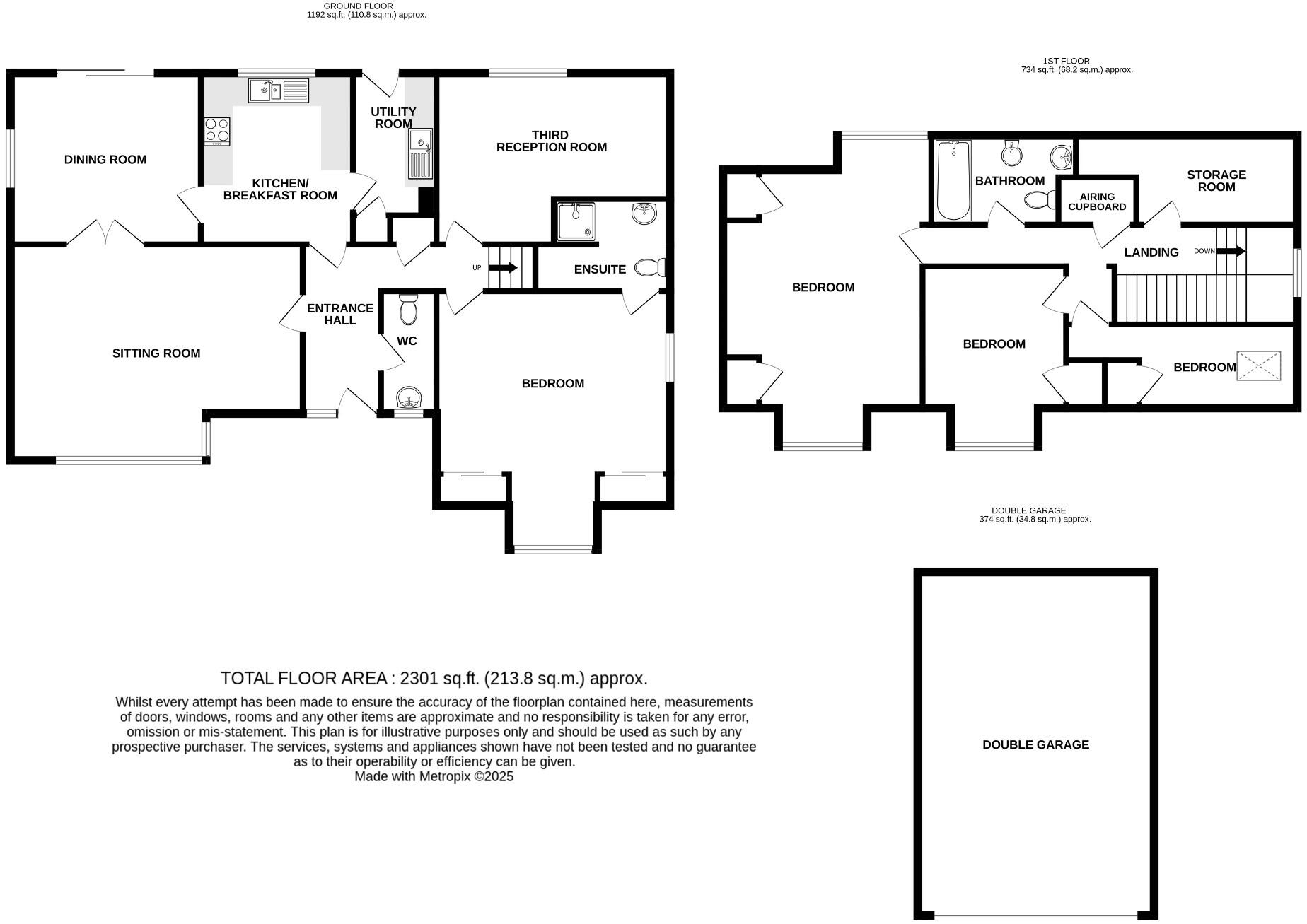
Set in a quiet Meads cul-de-sac and backing onto lower South Downs woodland, this spacious five-bedroom detached house delivers far-reaching sea and downs views from principal rooms. The ground floor is particularly adaptable — a large master suite with ensuite, two formal reception rooms and a third reception currently used as bedroom five offer single-level living for families or multigenerational households. A useful loft room provides extra storage or potential home-study space.
Outside, the property sits on a generous plot with landscaped south-westerly rear gardens, a paved entertaining terrace and mature borders. Parking is straightforward with a wide block-paved driveway plus an integral double garage. The house is offered with no onward chain and sits within easy reach of Meads village amenities, seafront promenade and a mix of state and independent schools.
Practical points to note: the home has an EPC rating of C and is sold freehold. Broadband speeds in the area are reported very slow, and the property is in Council Tax band G, so running costs will be significant. The accommodation is bright and well-proportioned but offers clear scope to modernise kitchens, bathrooms and cosmetic finishes to suit a buyer’s taste and unlock further value.
4 bedroom detached house for sale in Cranborne Avenue, Eastbourne, BN20 — £795,000 • 4 bed • 2 bath • 2152 ft²
4 bedroom detached house for sale in Lincoln Close, Meads, Eastbourne, BN20 — £980,000 • 4 bed • 3 bath • 2504 ft²
4 bedroom detached house for sale in Rowsley Road, Eastbourne, BN20 — £850,000 • 4 bed • 2 bath • 2078 ft²
3 bedroom detached bungalow for sale in Lincoln Close, Eastbourne, BN20 — £975,000 • 3 bed • 2 bath • 3635 ft²
4 bedroom detached house for sale in Rowsley Road, Eastbourne, BN20 — £850,000 • 4 bed • 2 bath • 1976 ft²
5 bedroom detached house for sale in Rochester Close, Meads, Eastbourne, East Sussex, BN20 — £865,000 • 5 bed • 2 bath • 2265 ft²


































































































