Ready-to-move-in three-bed with garage, long garden and extension potential.
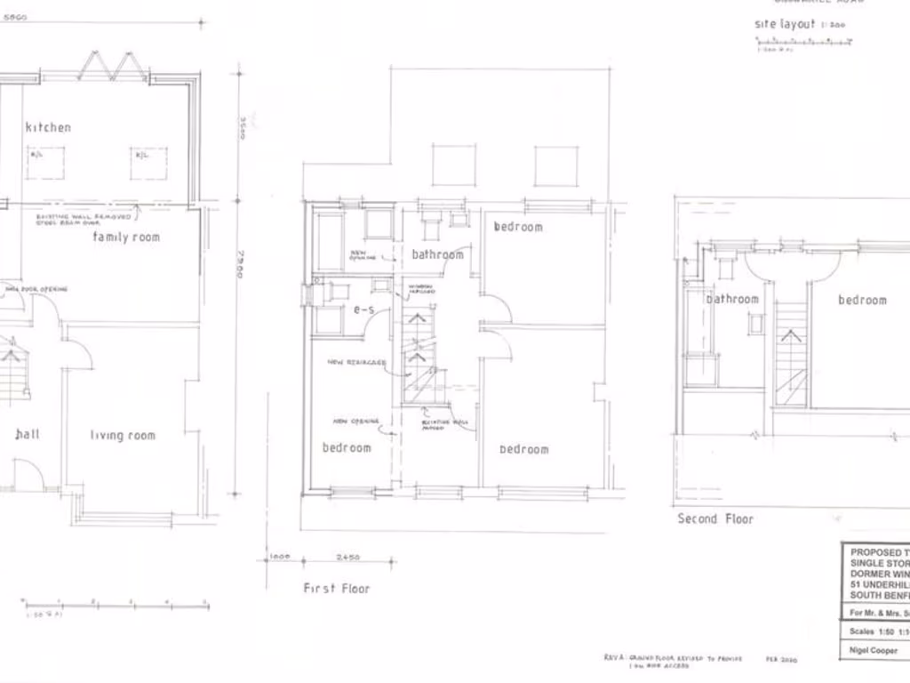
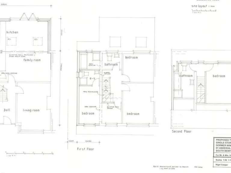
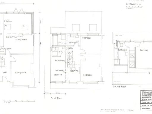
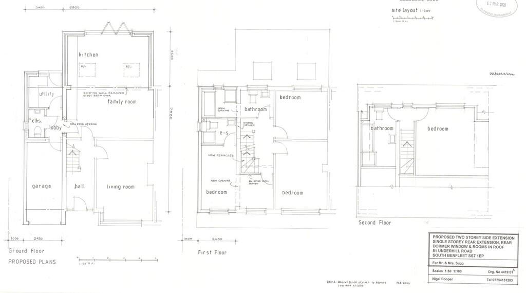
Three good-sized bedrooms plus potential to add a 4th (lapsed extension planning)
Large 18'8" kitchen/diner with French doors to approx. 60' rear garden
Modern 16'9" lounge; recently refurbished throughout
Detached garage with power, plus driveway parking for numerous vehicles
NO ONWARD CHAIN – quicker moving possible
EPC rating D; mid-century solid brick walls likely without insulation
Single family bathroom only; one shower/bathroom for three bedrooms
Built 1950s-60s — energy improvements likely to add long-term value
Light, practical living space throughout makes this refurbished three-bedroom end terrace well suited to family life. The ground floor features a modern 16'9" lounge and an 18'8" kitchen/diner with room for a large family table and direct access to an approx. 60' rear garden. Off-street parking for several vehicles and a detached garage add useful storage and parking flexibility.
The property has been recently refurbished by the current owners and is offered with NO ONWARD CHAIN, allowing a straightforward purchase for buyers wanting to move quickly. Lapsed planning permission existed for a rear and second-floor extension to create a fourth bedroom, ensuite and an extended family room — a clear opportunity for those wanting to add space, subject to obtaining fresh consent.
Practical details: freehold tenure, mains gas central heating, double glazing and a single family bathroom. The EPC is D and the house was built mid-20th century with original solid brick walls (insulation assumed absent), which should be noted by buyers considering further energy upgrades. Located in a sought-after South Benfleet street within walking distance of schools, shops and around 1.25 miles from Benfleet station, the home sits in a very low-crime, affluent area.
This house will suit growing families looking for a ready-to-live-in home with scope to extend, or buyers seeking a well-presented property with parking, a garage and generous outdoor space in a convenient location.
4 bedroom detached house for sale in St. Marys Drive, South Benfleet, SS7 — £500,000 • 4 bed • 2 bath • 1461 ft²
3 bedroom end of terrace house for sale in Birch Close, Benfleet, SS7 — £425,000 • 3 bed • 2 bath • 1076 ft²
3 bedroom semi-detached house for sale in London Road, Benfleet, SS7 — £350,000 • 3 bed • 1 bath • 1003 ft²
3 bedroom detached house for sale in Vicarage Hill, SS7 — £800,000 • 3 bed • 1 bath • 9294 ft²
3 bedroom semi-detached house for sale in Kimberley Road, Benfleet, Essex, SS7 — £375,000 • 3 bed • 1 bath • 1626 ft²
3 bedroom semi-detached house for sale in Meadway, Benfleet, SS7 — £375,000 • 3 bed • 1 bath • 1020 ft²






































































