Two character stone houses with workshop and income potential, in scenic Yorkshire Dales.
Chain free sale of two detached stone houses with stunning dale views
Located inside Yorkshire Dales National Park; very low crime area
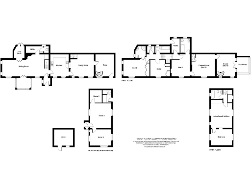
Staney Gill: up to 4–5 doubles, multiple receptions, conservatory/sunroom
Highgate House: large joiner’s workshop plus 1-bed apartment (income potential)
Requires renovation throughout; EPCs F (Staney Gill) and G (Highgate)
Walls likely uninsulated sandstone/limestone; heating via gas and oil boilers
Small plot size; private patios and shared front grassed area with views
Council tax bands high; budgeting for running costs and upgrades needed
Two traditional stone houses sit together in an elevated hamlet within the Yorkshire Dales National Park, offering exceptional views, privacy and flexible living. Staney Gill House provides multiple reception rooms, a conservatory/sunroom, and up to 4–5 double bedrooms; Highgate House includes a sizeable joiner’s workshop and a one-bedroom apartment — useful as an annex or holiday let.
The properties retain period character: exposed beams, stone-flagged floors, inglenook fireplaces and original staircases. Gas and oil-fired boilers serve the houses and there is mains water, electricity and drainage. The setting and dual accommodation create genuine opportunity for multi-generational living or an income stream from the on-site apartment or holiday let.
Important practical points are clear: both buildings require renovation and updating, with EPC ratings of F (Staney Gill) and G (Highgate). The stone walls have little assumed insulation and some services are older; the listing notes much work to be done. Council tax bands are high and the plot is modest in size despite attractive patio and garden areas.
This sale is chain free and well-suited to buyers seeking a character-filled project in a remote, low-crime location with excellent mobile signal. It will particularly suit families wanting flexible accommodation, buyers aiming to run a small holiday income, or a tradesperson seeking an on-site workshop — provided they budget for refurbishment and energy improvements.
3 bedroom detached house for sale in Whitbecks, Harkerside, Reeth, Swaledale, DL11 — £550,000 • 3 bed • 2 bath • 1228 ft²
4 bedroom semi-detached house for sale in Park Hall Lane, Richmond, DL11 — £599,950 • 4 bed • 3 bath • 1405 ft²
3 bedroom semi-detached house for sale in Bank Heads Cottage, Low Row, Richmond DL11 6NJ, DL11 — £500,000 • 3 bed • 2 bath • 2142 ft²
4 bedroom detached house for sale in Middlegate House, Burtersett, Hawes, DL8 3PB, DL8 — £525,000 • 4 bed • 3 bath • 2185 ft²
3 bedroom detached house for sale in Smarber Cottage, Blades, Low Row, Swaledale, DL11 — £395,000 • 3 bed • 1 bath • 1138 ft²
5 bedroom detached house for sale in Old Hall Laithe & Barn on The Green, Kilnsey, Skipton, BD23 — £850,000 • 5 bed • 3 bath • 2700 ft²


























































































































































































































































































