Barn-style living with private paddocks and panoramic southerly views.
Circa 3.69 acres of gardens, paddocks and woodland (to be verified)
Planning permission granted for luxury detached annex conversion
Newly renovated interior with beamed vaulted ceilings and character features
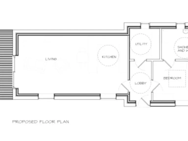
Ground-floor bedroom and shower room; family-friendly layout
Large gravel drive with extensive off-street parking
Oil-fired heating; boiler and radiators (not a community system)
Very slow broadband in this rural hamlet location
Cavity walls likely uninsulated; EPC E and council tax Band G
Set within about 3.69 acres, this newly renovated five-bedroom detached cottage offers generous family accommodation and far-reaching southerly views to the South Downs. The house blends character features — beamed vaulted ceilings, inglenook fireplace and sash-style windows — with contemporary kitchen and bath fittings. Extensive landscaped gardens, paddocks and woodland provide strong equestrian or outdoor lifestyle potential.
Practical benefits include a large gravel driveway with parking for multiple vehicles and planning permission recently granted to convert and extend the detached garage into a self-contained luxury annex. Most principal rooms face south to maximise light and views; the layout already includes versatile reception rooms, a ground-floor bedroom with shower, and good laundry and storage provision.
Notable running considerations are factual: heating is oil-fired with boiler and radiators, windows are double-glazed but some were installed before 2002, and walls are cavity-built with assumed lack of insulation. Broadband speeds are very slow in this hamlet location, council tax is high (Band G) and the EPC rating is E. Viewings are recommended to appreciate the scale, views and conversion potential offered by the plot.
5 bedroom detached house for sale in Rushlake Green, East Sussex, TN21 — £1,999,500 • 5 bed • 3 bath • 5922 ft²
5 bedroom link detached house for sale in Little London Road, Little London, Heathfield, TN21 — £995,950 • 5 bed • 3 bath • 3312 ft²
5 bedroom detached house for sale in Grove Hill, Hellingly, East Sussex, BN27 — £1,185,000 • 5 bed • 3 bath • 2723 ft²
3 bedroom detached house for sale in Broad Farm, Swife Lane, Broad Oak, East Sussex, TN21 8UX, TN21 — £1,500,000 • 3 bed • 3 bath • 3250 ft²
3 bedroom detached house for sale in Pook Reed Lane, Heathfield, TN21 — £795,000 • 3 bed • 2 bath • 1417 ft²
4 bedroom detached house for sale in Rotherfield Lane, Mayfield, TN20 — £899,950 • 4 bed • 2 bath • 1668 ft²






























































































































































































































































































