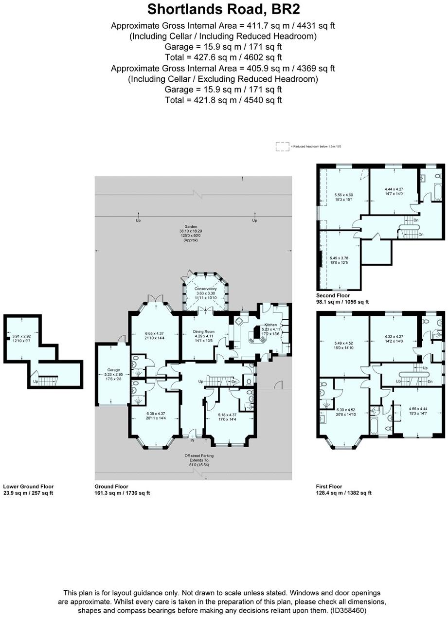
### Standout Features:
- Spacious 9-bedroom detached property with en-suite facilities for each room
- Currently operating as a high-yield HMO, generating approximately £108,100 per annum
- Original Victorian period features, such as high ceilings and large bay windows
- Off-street parking for multiple vehicles, plus a sizeable garden
- Prime location near Shortlands Village and Bromley town center with low crime rates and excellent schools nearby
- Flexible potential for conversion back to a family home or flats
### Summary:
Discover an exceptional investment opportunity with this expansive 9-bedroom detached home in Bromley’s sought-after Shortlands Road. This Victorian gem boasts en-suite bathrooms for all bedrooms, high ceilings, and charming period details, making it not only attractive but functional. Currently utilized as a House in Multiple Occupation (HMO), it offers a substantial income potential of over £108,100 per year, ideal for investors looking for cash flow.
Situated just a quarter-mile from Shortlands Village and within easy reach of Bromley town center, this property is perfect for families and professionals alike, with top-rated schools close by, including Harris Academy Shortlands. The off-street parking and generous garden add to its appeal. With the potential for conversion back into a stunning family home or flats, this property is a rare find in a thriving community. Don’t miss your chance to capitalize on its versatility and location—opportunities like this won't last long!
5 bedroom semi-detached house for sale in Winlaton Road, Bromley, Kent, BR1 — £675,000 • 5 bed • 3 bath • 1432 ft²
5 bedroom house of multiple occupation for sale in North Cray Road, Bexley Village, DA5 — £725,000 • 5 bed • 3 bath • 1398 ft²
6 bedroom detached house for sale in Rodway Road, Bromley, BR1 — £2,000,000 • 6 bed • 4 bath • 5173 ft²
10 bedroom detached house for sale in Broomhill Park Road, Southborough, Tunbridge Wells, TN4 — £825,000 • 10 bed • 8 bath • 3881 ft²
House of multiple occupation for sale in 348 Brighton Road, Croydon, Surrey, CR2 6AJ, CR2 — £700,000 • 1 bed • 1 bath • 1485 ft²
House of multiple occupation for sale in 86 London Road, Lewisham, London, SE23 — £1,550,000 • 1 bed • 1 bath • 3122 ft²










































