Compact modern flat near station and riverside amenities ideal for first-time buyers.
Share of freehold with 106 years remaining on lease
No onward chain — available for quick completion
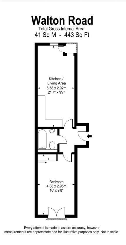
One double bedroom with built-in wardrobe and Juliette balcony
Open-plan kitchen/lounge with corner balcony
Approx 517 sq ft — compact, efficient one-bedroom layout
Located near Hampton Court Station and village amenities
Above-average local crime recorded — consider security measures
Situated above commercial premises — possible noise/deliveries
This first-floor one-bedroom apartment in East Molesey offers an accessible entry into a desirable Surrey village. The open-plan kitchen/living space opens to a corner balcony, and the double bedroom benefits from a Juliette balcony and built-in wardrobe. Share of freehold and a long lease (106 years remaining) add ownership security, while no onward chain allows a quick move.
Located a short walk from Hampton Court Station, riverside pubs and local shops, the flat suits a first-time buyer or buy-to-let investor seeking strong local demand. At about 517 sq ft, the layout is compact but practical: a linear plan with a separate bathroom and clear living/bedroom zones. Modern construction (2003–2006) and recent double glazing reduce immediate maintenance needs.
Buyers should note a few practical drawbacks: the apartment sits above commercial premises, which may cause occasional noise or deliveries, and local recorded crime is above average for the area. There is an annual service charge (£720) to budget for. Overall, this property is a straightforward, well-located one-bed with good commuter links and investment potential, best for someone accepting a compact urban flat and occasional street-level activity.
1 bedroom apartment for sale in Walton Road, East Molesey, KT8 — £220,000 • 1 bed • 1 bath • 468 ft²
1 bedroom apartment for sale in Walton Road, East Molesey, KT8 — £239,950 • 1 bed • 1 bath • 425 ft²
1 bedroom apartment for sale in Walton Road, West Molesey, KT8 — £200,000 • 1 bed • 1 bath • 453 ft²
2 bedroom apartment for sale in Matham Road, East Molesey, KT8 — £399,950 • 2 bed • 1 bath • 534 ft²
2 bedroom flat for sale in Hidden Close, West Molesey, KT8 — £350,000 • 2 bed • 1 bath • 714 ft²
1 bedroom apartment for sale in Walton Road, East Molesey, KT8 — £367,500 • 1 bed • 1 bath • 679 ft²










































