Affordable two-bedroom terraced home for renovation in a quiet Hartlepool cul-de-sac..
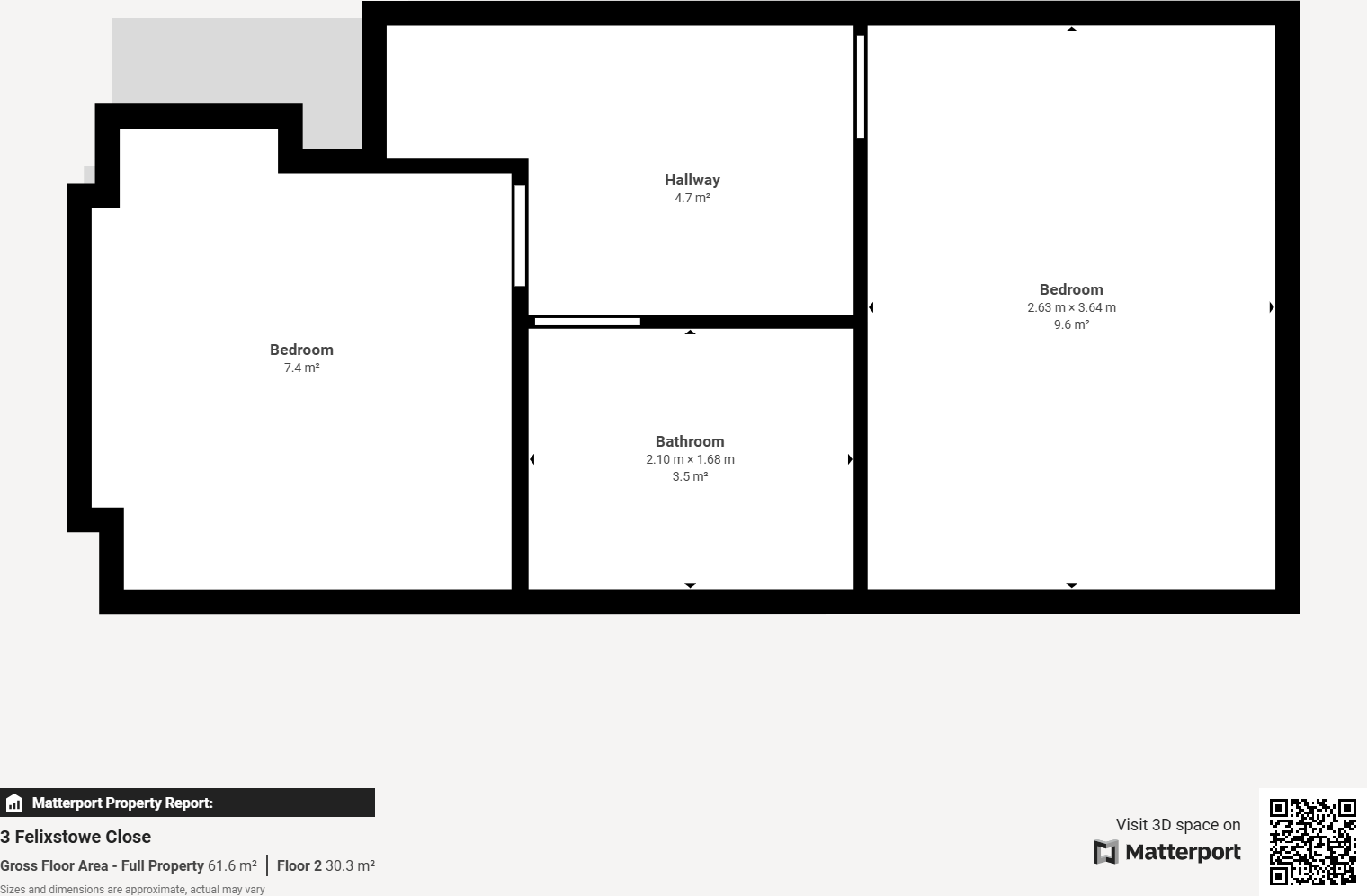
- Two double bedrooms, traditional two-storey layout
- Living room with French doors to rear garden
- Front and rear gardens; small plot
- Off-street residential parking included
- Needs renovation and modernisation throughout
- Freehold tenure; approx 664 sqft total area
- Very low council tax and no flood risk
- Fast broadband and excellent mobile signal
Set on a quiet cul-de-sac, this two-bedroom terraced house offers a straightforward, affordable entry into Hartlepool homeownership. The property is freehold, arranged over two storeys with a traditional layout, an open-plan kitchen and a bright living room with French doors opening onto the rear garden. At approximately 664 sqft it's an average-sized home well suited to first-time buyers or a small family.
The house requires renovation and modernisation; cosmetic and likely mechanical updates are needed, which is reflected in the asking price. Despite the work, there are clear positives: off-street residential parking, both front and rear gardens, fast broadband and excellent mobile signal make it practical for daily life and remote working.
Local amenities and several good-rated primary and secondary schools are within easy reach, and the property sits in a low flood-risk area with very low council tax. The small plot and dated mid-20th-century features limit expansion potential but also keep running costs modest, creating scope for value uplift through targeted refurbishment.
This home will suit buyers seeking an affordable starter property they can personalise, or investors looking for a renovation project in a serviceable neighbourhood. Be prepared to factor refurbishment costs and a modest plot size into plans.
2 bedroom terraced house for sale in Banff Grove, Hartlepool, TS25 — £115,000 • 2 bed • 1 bath • 615 ft²
2 bedroom end of terrace house for sale in Mildenhall Close, Hartlepool, TS25 — £135,000 • 2 bed • 1 bath • 679 ft²
2 bedroom terraced house for sale in Brecongill Close, Hartlepool, TS24 — £81,000 • 2 bed • 1 bath • 689 ft²
2 bedroom terraced house for sale in Rossall Street, Hartlepool, TS25 — £50,000 • 2 bed • 1 bath • 711 ft²
2 bedroom semi-detached house for sale in Kingsley Avenue, Hartlepool, TS25 — £150,000 • 2 bed • 1 bath • 544 ft²
3 bedroom end of terrace house for sale in Raby Square, Hartlepool, TS24 8, TS24 — £79,000 • 3 bed • 1 bath • 1033 ft²






































