**Standout Features:**
- Top-floor one-bedroom apartment in a popular retirement community for over 60s.
- Spacious, light-filled rooms with contemporary decor and large windows.
- Well-regarded building with a residents' lounge, lift access, and secure entry system.
- Located near essential amenities, including shops, parks, and dining options.
**Concerns:**
- Requires a significant renovation to modernize the interiors.
- Broadband speeds are very slow, which could impact connectivity.
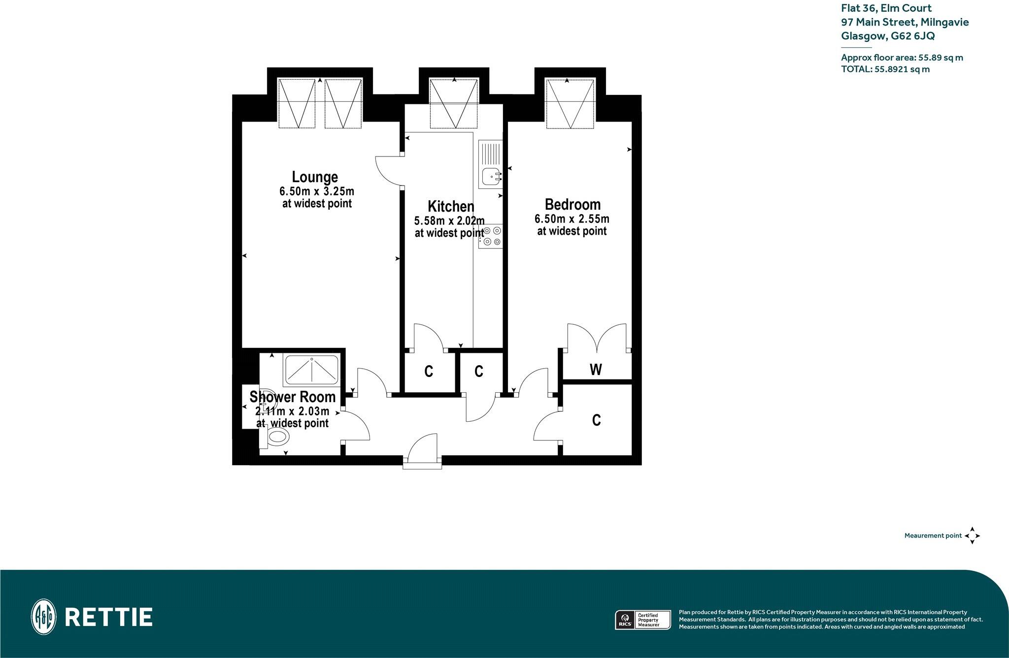
Experience comfortable retirement living in this well-positioned top-floor apartment within the sought-after Elm Court development. With a bright and roomy layout that includes a cozy lounge with charming Velux windows, a convenient kitchen, and a substantial double bedroom with built-in wardrobes, this property offers the perfect foundation for personalization. Although the home requires a renovation to bring it to contemporary standards, its affordable price of £95,000 presents a solid investment opportunity, especially for those looking to downsize.
Enjoy the benefits of a supportive community with a dedicated property manager on-site, ensuring a secure and friendly environment. The vibrant local area boasts an array of shopping options, parks, and leisure activities just minutes away, cementing this property as a prime candidate for those seeking comfort and convenience in their retirement. Don't miss out on the chance to create your ideal living space!
1 bedroom retirement property for sale in Elm Court, Milngavie, G62 — £120,000 • 1 bed • 1 bath • 635 ft²
1 bedroom apartment for sale in Main Street, Milngavie, Glasgow, East Dunbartonshire, G62 — £95,000 • 1 bed • 1 bath • 588 ft²
1 bedroom retirement property for sale in Flat 9, Elm Court, 97 Main Street, Milngavie, G62 6JQ, G62 — £115,000 • 1 bed • 1 bath • 635 ft²
1 bedroom retirement property for sale in Muirfield Court, Muirend, G44 — £95,000 • 1 bed • 1 bath • 471 ft²
1 bedroom retirement property for sale in Riverton Court, Riverford Road, Newlands, G43 — £109,000 • 1 bed • 1 bath • 583 ft²
1 bedroom flat for sale in Em Court, Main Street, Milngavie, Glasgow, G62 — £95,000 • 1 bed • 1 bath • 571 ft²


















































