Compact, move-in-ready one-bedroom close to shops and transport.
Chain free with 112 years remaining on the lease
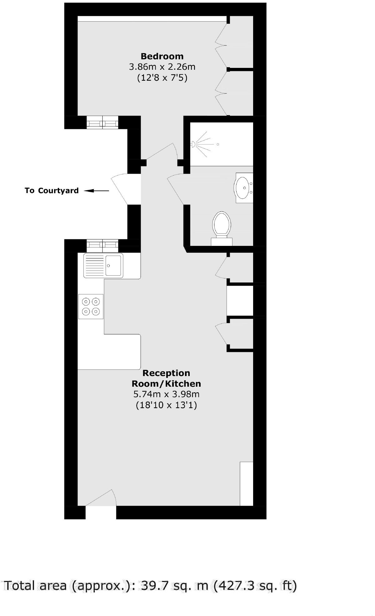
Open-plan reception and modern fitted kitchen, ready to live in
Double bedroom with built-in storage; private courtyard
Approx. 427 sq ft — compact living space
Garage parking included — uncommon for area
Electric room heaters; likely higher running costs than gas
Service charge ≈ £1,000/year and ground rent £200/year
Partial wall insulation assumed; double glazing fitted post-2002
This compact one-bedroom ground-floor conversion in SW4 offers a bright, open-plan living area and a modern fitted kitchen — ready to move into and sold chain free. The well-proportioned double bedroom includes built-in storage, and the flat opens onto a private courtyard, adding outdoor space in a busy location.
Practical strengths include a long lease (112 years), a garage parking space and no flood risk. Transport links are strong: Clapham Common, Clapham High Street and Brixton stations are all within easy reach, while Abbeville Village and Clapham Old Town provide shops, cafés and restaurants nearby.
Buyers should note the apartment’s small overall size (approx. 427 sqft) and electric heating via room heaters — running costs may be higher than gas-heated homes. The building has partial wall insulation (assumed) and double glazing installed post-2002, but the main heating and fuel are electric. Annual outgoings are a service charge of about £1,000 and ground rent of £200.
Ideal for a first-time buyer or investor seeking a low-entry Clapham property with immediate rental or residential potential. The flat is presented in modern condition but buyers wanting lower long-term energy costs or major layout changes should factor in potential upgrades.
1 bedroom flat for sale in St. Luke's Avenue, Clapham, SW4 — £500,000 • 1 bed • 1 bath • 573 ft²
1 bedroom flat for sale in Northbourne Road, Clapham, SW4 — £395,000 • 1 bed • 1 bath • 467 ft²
1 bedroom flat for sale in Larkhall Rise, Clapham, SW4 — £400,000 • 1 bed • 1 bath • 515 ft²
1 bedroom flat for sale in Waldo Close, Clapham, SW4 — £450,000 • 1 bed • 1 bath • 581 ft²
1 bedroom flat for sale in Crescent Lane, SW4 — £390,000 • 1 bed • 1 bath • 323 ft²
1 bedroom flat for sale in Rodenhurst Court Rodenhurst Road, Clapham Park SW4 — £350,000 • 1 bed • 1 bath • 500 ft²






















