Private plot with panoramic rural views, garage parking and solar panels.
Four double/single bedrooms with versatile layout and large loft study space
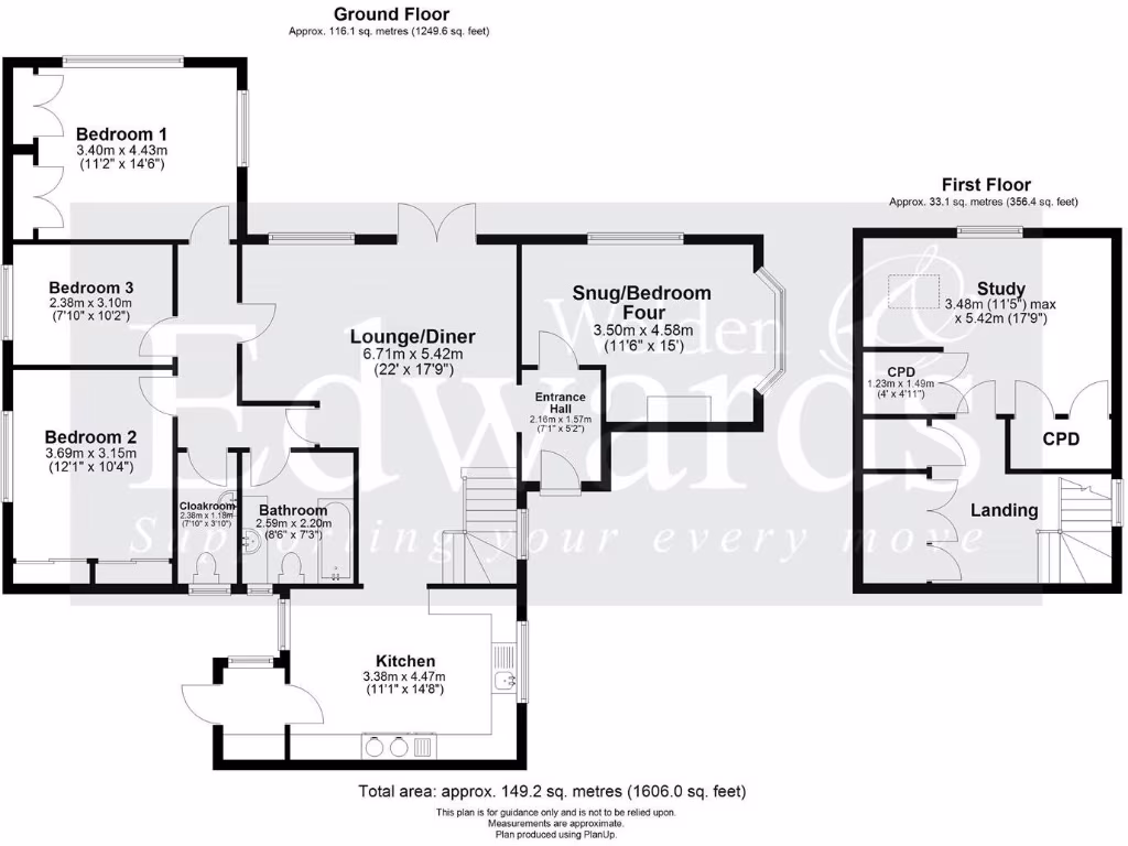
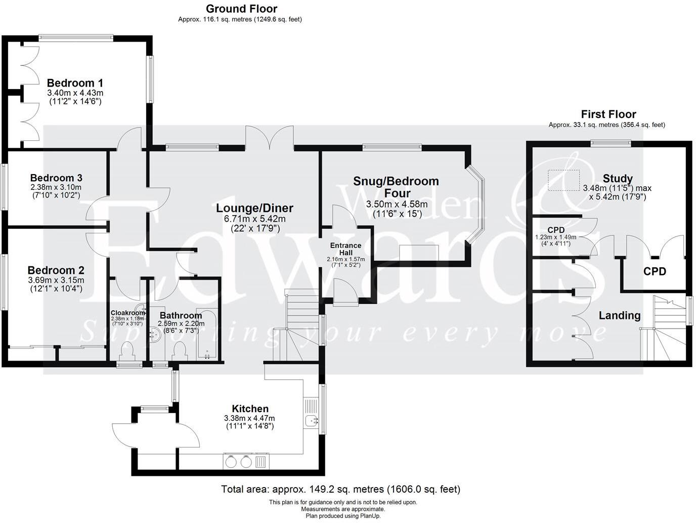
Tucked away in the hamlet of Seven Crosses, this adaptable four-bedroom detached bungalow offers comfortable single-level living with room to grow. The heart of the home is a flowing lounge, dining area and kitchen with a Rayburn, while a useful loft space adds flexible accommodation or home-office potential. Large, mature gardens and countryside views create a peaceful, private setting ideal for family life or those seeking a rural retreat.
The plot is a standout: generous lawns, two patio areas, mature trees and a substantial driveway with garage provide excellent outdoor space, parking and storage — caravan space is already visible. Owned solar panels reduce running costs and the property benefits from a ground-source heat pump with underfloor heating, supporting lower-energy living compared with older oil-fired systems.
Buyers should note important practical points: the property is in a high flooding-risk area and has an EPC rating of D. Services include a septic tank rather than mains drainage, and there is only one main family bathroom (plus separate WC). The location is very rural and quieter mobile signal should be expected, although broadband speeds are reported fast.
Overall this is a versatile country home that will suit families and downsizers who value space, privacy and countryside views. It also offers refurbishment or loft-conversion potential for those wanting to personalise or increase living space, provided flood-risk considerations are addressed.
3 bedroom detached house for sale in Crediton, Devon, EX17 — £530,000 • 3 bed • 1 bath • 1441 ft²
4 bedroom bungalow for sale in Kennford, Exeter, Devon, EX6 — £1,150,000 • 4 bed • 3 bath • 2414 ft²
4 bedroom bungalow for sale in Isabella Road, Tiverton, Devon, EX16 — £325,000 • 4 bed • 1 bath • 1018 ft²
4 bedroom bungalow for sale in Smallacombe Road, Tiverton, Devon, EX16 — £375,000 • 4 bed • 2 bath • 1231 ft²
4 bedroom detached house for sale in The Studio The Drive, Farringdon, EX5 — £575,000 • 4 bed • 3 bath • 2547 ft²
3 bedroom bungalow for sale in Uplowman Road, Tiverton, EX16 — £625,000 • 3 bed • 3 bath • 2418 ft²






























































































