Contemporary three-bedroom house with generous garden and NHBC warranty.
- Brand-new, chain-free three-storey semi-detached house
- 1,038 sq ft internal area with multiple storage cupboards
- Open-plan living/dining with French doors to very large garden
- Principal bedroom on private top floor with en-suite and dressing area
- 10-year NHBC Buildmark policy included
- Off-street driveway parking provided
- Estate management charge £484 per year
- Slow broadband and above-average local crime rates
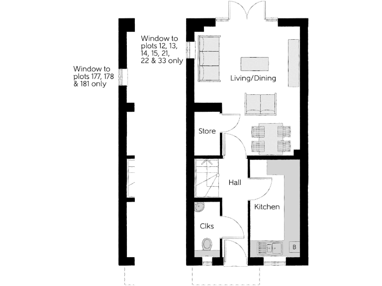
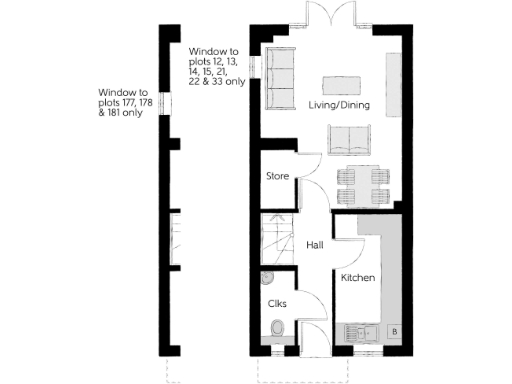
This new-build three-bedroom semi-detached house offers modern living across three storeys with practical storage and contemporary finishes. The ground floor open-plan living and dining area opens through elegant French doors to a very large rear garden, providing light and easy indoor–outdoor flow. Upstairs, the top-floor principal bedroom benefits from an en-suite shower and a dedicated dressing area, giving a private retreat for owners.
As a brand-new home it comes with a 10-year NHBC Buildmark policy and is chain free, which simplifies purchase and offers structural cover in the early years. Off-street parking is provided on-plot and the internal layout includes multiple storage cupboards to keep living spaces tidy. The property is part of a masterplanned development offering nearby green space and family-oriented amenities.
Practical considerations are factual: broadband speeds are reported as slow and local crime is above average, factors to weigh for those who work from home or prioritise low-crime areas. There is an estate management charge of £484 for communal upkeep. Council tax is yet to be confirmed. Overall, this is a well-specified new home suited to first-time buyers or growing households seeking modern accommodation with long-term warranty cover and generous outdoor space.
3 bedroom semi-detached house for sale in Beveridge Lane,
Ellistown,
Leicestershire
LE67 1FB, LE67 — £304,950 • 3 bed • 1 bath • 1228 ft²
3 bedroom semi-detached house for sale in Beveridge Lane,
Ellistown,
Leicestershire
LE67 1FB, LE67 — £304,950 • 3 bed • 1 bath • 1228 ft²
4 bedroom detached house for sale in Beveridge Lane,
Ellistown,
Leicestershire
LE67 1FB, LE67 — £359,950 • 4 bed • 1 bath • 1324 ft²
3 bedroom detached house for sale in Beveridge Lane,
Ellistown,
Leicestershire
LE67 1FB, LE67 — £307,500 • 3 bed • 1 bath • 976 ft²
3 bedroom detached house for sale in Beveridge Lane,
Ellistown,
Leicestershire
LE67 1FB, LE67 — £297,500 • 3 bed • 1 bath • 1003 ft²
3 bedroom detached house for sale in Beveridge Lane,
Ellistown,
Leicestershire
LE67 1FB, LE67 — £294,950 • 3 bed • 1 bath • 1003 ft²


























































