Four-home rural development with strong commuter links and approved reserved matters.
- Full planning permission for four detached dwellings (reserved matters approved)
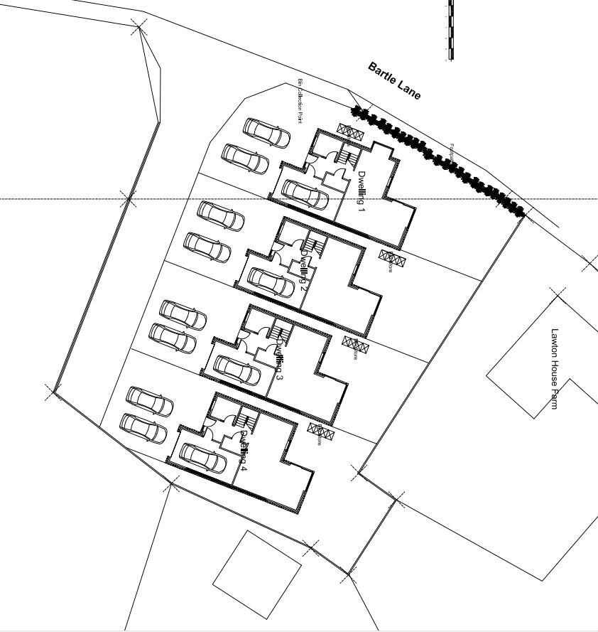
- Site extends to approx 0.32 acres (0.13 ha) with roadside frontage
- Attractive rural outlooks onto agricultural pasture
- Existing barn derelict; demolition likely required
- Right of way shown on site plan; access established
- Broadband very slow; mobile signal average
- Close to M55/M6 and Preston (around 15 minutes)
- Affluent area with very low crime and good local schools
A rare development parcel with full planning permission for four detached dwellings, set in a tranquil, sought-after rural location. The site extends to approximately 0.32 acres (0.13 ha) with roadside frontage to Bartle Lane and attractive outlooks over agricultural pasture. Reserved matters were approved 27 Mar 2025 (application 06/2023/0660) following outline consent in 2020, so a purchaser can progress to build bespoke homes without further major planning risk.
The existing buildings are derelict and largely unmaintained; demolition of the barn is part of the approved proposals. The plot’s scale and layout offer flexibility for developer design within the approved scheme, and the site benefits from an existing right of way shown on the site plan. Connectivity is strong for a rural location — the M55 (and M6 via Jct 32) is readily accessible and Preston city centre is reachable in around 15 minutes.
Practical considerations: broadband speeds are very slow and mobile signal is only average, which may affect buyer appeal for some households. Services, boundaries and internal condition of retained structures will require confirmation on site; demolition and site clearance costs should be budgeted. The surrounding area is affluent with very low crime and good local schools, supporting family demand for new-build homes in the locality.
This plot will suit a small housebuilder or investor seeking a near-term planning-ready project in a peaceful countryside setting with strong commuter links. The planning history is detailed on Preston City Council’s portal and the approved scheme reduces a large portion of pre-development planning risk.
Detached house for sale in Balderstone Farm, Bartle Lane, Lower Bartle, Preston, PR4 0RU, PR4 — £650,000 • 1 bed • 1 bath • 1529 ft²
Plot for sale in Jack Green Farm, Oram Road, Brindle, PR6 8NT, PR6 — £1,200,000 • 1 bed • 1 bath
Barn for sale in Duckworth Hill Lane, Oswaldtwistle, BB5 — £320,000 • 1 bed • 1 bath
Plot for sale in Sandside, Cockerham, Lancaster, Lancashire, LA2 — £380,000 • 1 bed • 1 bath • 1730 ft²
Plot for sale in Brookhouse Road, Brookhouse, Lancaster, Lancashire, LA2 — £250,000 • 1 bed • 1 bath • 1593 ft²
Land for sale in The Lane, Poulton le Fylde, FY6 — £700,000 • 1 bed • 1 bath


































