Affordable modern apartment with parking and communal greenspace nearby.
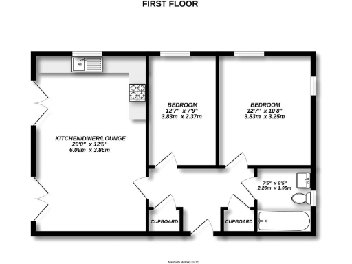
- Two double bedrooms with flexible use for home office
- Open-plan kitchen/living area with good natural light
- Two allocated parking spaces; communal bike store
- No private garden; outdoor space is communal only
- EPC B (84) and gas central heating via boiler
- Shared ownership tenure; lease approx. 117 years remaining
- Service charge about £2,892 pa; confirm exact costs and reviews
- Modest overall size (533 sq ft) — compact living layout
A compact, well-presented first-floor apartment on the Woodhurst Park development, offering modern open-plan living and two double bedrooms. At 533 sq ft, the layout maximises natural light and a practical flow between the kitchen, dining and lounge — suitable for first-time buyers or buy-to-let investors seeking low-maintenance living. The property includes two allocated parking spaces and a communal bike store, plus pleasant views over landscaped communal grounds and nearby fields.
This is offered as shared ownership at £300,000, making entry more affordable than full-market purchase. The EPC is B (84) and the gas boiler with radiators provides efficient heating. The development benefits from well-kept communal green space, nearby parks and highly regarded local schools, which is a strong pull for young families or purchasers planning long-term rental appeal.
Important points to check: the apartment’s overall size is modest (533 sq ft) and there is no private garden — outdoor space is communal only. The service charge is listed at £2,892 (average), and ground rent/service charge details are shown as TBC here; these fees and any rent on the shared-ownership lease should be confirmed with your solicitor before exchange. The lease has around 117 years remaining, which is generally healthy but should be verified in the legal pack.
In short, this first-floor apartment offers a practical, contemporary home with good energy performance and parking, positioned in a tranquil, well-regarded development. It suits first-time buyers who prioritise affordability and low upkeep, and investors seeking a rental in an affluent, family-friendly area — provided ongoing charges and shared-ownership terms meet your requirements.
2 bedroom flat for sale in Ferard Corner, Warfield, Bracknell, Berkshire, RG42 — £116,000 • 2 bed • 1 bath • 533 ft²
2 bedroom apartment for sale in Ferard Corner, Warfield, Bracknell, Berkshire, RG42 — £124,000 • 2 bed • 1 bath • 630 ft²
2 bedroom apartment for sale in Ferard Corner, Warfield, Bracknell, Berkshire, RG42 — £93,000 • 2 bed • 1 bath • 627 ft²
2 bedroom apartment for sale in Ferard Corner, Warfield, Bracknell, Berkshire, RG42 — £310,000 • 2 bed • 1 bath • 630 ft²
2 bedroom apartment for sale in Ferard Corner, Warfield, Berkshire, RG42 — £310,000 • 2 bed • 1 bath • 627 ft²
2 bedroom apartment for sale in Hebbecastle Down, Warfield, Bracknell, RG42 — £117,500 • 2 bed • 1 bath • 650 ft²














































