UB10 0AH - 1 bedroom apartment for sale in Turnpike Lane, Uxbridge, UB…

View on Property Piper

1 bedroom apartment for sale in Turnpike Lane, Uxbridge, UB10

Summary - 31 TURNPIKE LANE UXBRIDGE UB10 0AH

1 bed 1 bath Apartment

**Standout Features:**
- One-bedroom ground floor apartment
- Direct access to communal gardens
- Allocated parking space
- Chain-free sale
- Excellent location near town center (walking distance)
- Suitable for investors and first-time buyers

**Concerns:**
- Only 63 years remaining on the lease, which may deter mortgage lenders
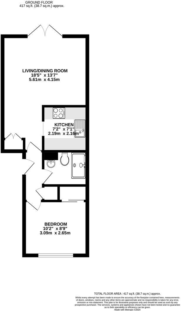
- Relatively small size (417 sq ft)
- High local crime rate

This well-proportioned one-bedroom ground floor apartment is set in a sought-after residential area of Uxbridge, just moments from the bustling town center. With the added benefit of direct access to beautifully maintained communal gardens and allocated parking, this property is perfect for first-time buyers or investors looking for a tranquil living space with excellent rental potential.

While the apartment is well presented and benefits from a modern kitchen, comfortable living/dining area, and spacious bedroom complete with built-in wardrobe, it's important to note that the lease only has 63 years remaining, which might affect mortgage options. Additionally, the high local crime rate and the unit's overall compact size should be considered.

Don't miss the opportunity to make this cozy flat your own and enjoy the convenience of local amenities, schools, and great transport links, including Uxbridge station and proximity to Brunel University. Schedule a viewing today and envision the lifestyle you could create in this lovely home!

Property Details

Brochure Descriptions

Image Descriptions

Floorplan Description

Rooms

Textual Property Features

Detected Visual Features

EPC Details

Nearby Schools

Nearest Bars And Restaurants

,,,,}

Nearest General Shops

,,}

Nearest Grocery shops

,,}

Nearest Supermarkets

,,}

Nearest Religious buildings

,,}

Nearest Medical buildings

,,,}

Nearest Airports

}

Nearest Leisure Facilities

,,,,}

Nearest Tourist attractions

,,}

Nearest Train stations

,,,,}

Nearest Bus stations and stops

,,,,}

Nearest Hotels

,,}

Tags

Local Market Stats

AirBnB Data

Similar Properties

Meta

High Res Images

Compatible Images

Low res Images

Thumbnails

Raw Images

High Res Floorplan Images

Compatible Floorplan Images

Low res Floorplan Images

FloorplanImages Thumbnail

Raw Floorplan Images