Chain-free 2–3 bed bungalow with large south garden, garage and driveway.
Chain free detached bungalow on large plot
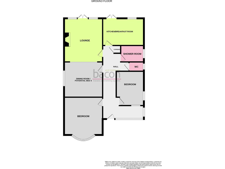
A spacious, single-storey detached bungalow offered chain free on a large plot in Worthing. The home’s genuine strength is its south-facing rear garden, accessed from both the lounge and kitchen, which offers mature planting and a sunny, private outdoor space ideal for low-maintenance gardening or summer entertaining. Off-street parking is generous with a private driveway for several cars and an attached garage with power.
Internally the layout works well for downsizers or a small family: a wide entrance hall, generous bay-fronted principal bedroom, second double bedroom, a flexible dining room that can serve as a third bedroom, and a modern shower room plus a separate cloakroom/WC. Practical upgrades have been made recently — a new combination boiler was fitted in 2025 and most windows are double glazed — reducing immediate heating concerns.
The property dates from the mid-20th century and presents solid bones (filled cavity walls, mains gas heating). It will benefit from cosmetic modernisation in places to reach top market value: some fittings are dated and there is scope to reconfigure or update finishes to suit contemporary tastes. Buyers should note this is a suburban location with above-average local crime statistics; purchasers may wish to consider security improvements.
This freehold bungalow sits in an affluent, largely self-sufficient neighbourhood with good mobile and fast broadband reception, and easy access to local bus services and nearby schools. There is no recorded flood risk. For anyone seeking a one-level home with a large garden, parking and straightforward improvement potential, this offers a practical, move-in-ready base with scope to add value over time.
3 bedroom detached bungalow for sale in Rockingham Close, Worthing, BN13 — £450,000 • 3 bed • 2 bath • 1059 ft²
3 bedroom bungalow for sale in Twyford Road, Worthing, West Sussex, BN13 — £399,950 • 3 bed • 1 bath • 1238 ft²
2 bedroom detached bungalow for sale in Moorfoot Road, Worthing, BN13 2EY, BN13 — £350,000 • 2 bed • 1 bath • 483 ft²
3 bedroom bungalow for sale in Exmoor Drive, Worthing, West Sussex, BN13 — £485,000 • 3 bed • 1 bath • 1173 ft²
3 bedroom semi-detached bungalow for sale in Strathmore Close, Worthing, BN13 — £400,000 • 3 bed • 1 bath • 775 ft²
3 bedroom bungalow for sale in Terringes Avenue, Worthing, West Sussex, BN13 — £425,000 • 3 bed • 1 bath • 881 ft²














































































