Ready-to-live-in three-bedroom home with garage and generous garden for family life.
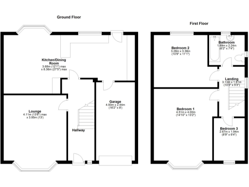
- Three bedrooms, approx 883 sq ft (82 sq m)
- Spacious kitchen/dining room with garden access
- Bay-front living room, good natural light
- Attached garage plus driveway parking
- Enclosed rear garden with borders
- EPC Rating C; double glazing installed pre-2002
- Single family bathroom for three bedrooms
- Freehold; mains gas central heating, filled cavity walls
This well-presented three-bedroom semi-detached home in NE5 suits a growing family seeking space and convenience. The property offers a bright living room with bay window, a generous kitchen/dining room that opens to the rear garden, and an attached garage with driveway parking — practical everyday features for family life.
Built in the 1930s, the house benefits from filled cavity walls, mains gas central heating with a boiler and radiators, and double glazing (installed before 2002). The floor area is approximately 883 sq ft, with one family bathroom serving three bedrooms. Council Tax band B and an EPC rating of C keep running costs reasonable.
The location is well connected to Newcastle city centre by bus routes, close to A1/A69 links, and surrounded by a range of good primary and secondary schools. Broadband speeds are fast and mobile signal is excellent, supporting home working and family needs. The neighbourhood records low crime and is classified as affluent with an established suburban feel.
Notable considerations: the glazing predates 2002 and may not match modern thermal standards, and there is a single bathroom for three bedrooms. Buyers should also note the property's age — systems and finishes may reflect a post-war build and could need updating over time. Overall, the house presents straightforward family potential with scope to personalise.
3 bedroom semi-detached house for sale in Western Avenue, West Denton, Newcastle upon Tyne, Tyne and Wear, NE5 — £194,950 • 3 bed • 1 bath • 968 ft²
3 bedroom semi-detached house for sale in Downend Road, Westerhope, Tyne and Wear, NE5 — £200,000 • 3 bed • 1 bath
3 bedroom semi-detached house for sale in The Garth, West Denton, Newcastle Upon Tyne, NE5 — £135,000 • 3 bed • 1 bath • 777 ft²
4 bedroom semi-detached house for sale in West Road, Newcastle Upon Tyne, NE15 — £255,000 • 4 bed • 2 bath • 1298 ft²
3 bedroom semi-detached house for sale in Northcote Avenue, Newcastle upon Tyne, NE5 — £230,000 • 3 bed • 1 bath • 1226 ft²
3 bedroom semi-detached house for sale in Hillhead Drive, Newcastle upon Tyne, Tyne and Wear, NE5 — £169,950 • 3 bed • 1 bath • 1001 ft²














































