DE22 1FT - 4 bedroom house for sale in Kedleston Road, Derby, DE22

View on Property Piper

4 bedroom house for sale in Kedleston Road, Derby, DE22

Summary - 163 KEDLESTON ROAD DERBY DE22 1FT

4 bed 2 bath House

**Standout Features:**
- Spacious mid-terraced Victorian home
- Four generous bedrooms with built-in storage
- Extended open-plan living/dining kitchen with bi-folding doors
- Modern utility room and ground floor shower room
- Double width block-paved driveway
- Beautiful, enclosed rear garden
- Proximity to Derby City Centre and Markeaton Park
- Potential for personal aesthetic touch and renovations

**Concerns:**
- Some maintenance required regarding age-related features
- Solid brick construction with no insulation (assumed)

Welcome to this beautifully presented, spacious mid-terraced Victorian home, expertly blending classic charm with modern living. Boasting four sizable bedrooms and a striking open-plan living dining kitchen with bi-folding doors that effortlessly lead to a generous rear garden, this property offers over 1800 square feet of characterful accommodation ideal for families or investors seeking rental potential. Enjoy relaxing moments in the stylish lounge with a bay window, or host gatherings in the dining room, seamlessly connected to the contemporary kitchen featuring top-tier appliances.

With a recently installed gas boiler, uPVC double glazing, and a well-maintained block-paved driveway for two cars, the property offers secure, convenient living with excellent local amenities just a short stroll away. Though the home presents an opportunity for buyers to add their personal touch due to its period features, potential restrictions may apply given the age of the construction. Those looking for comfort, elegance, and a slice of Victorian charm are invited to explore this gem—properties with such desirable features don’t stay on the market for long!

Property Details

Brochure Descriptions

Image Descriptions

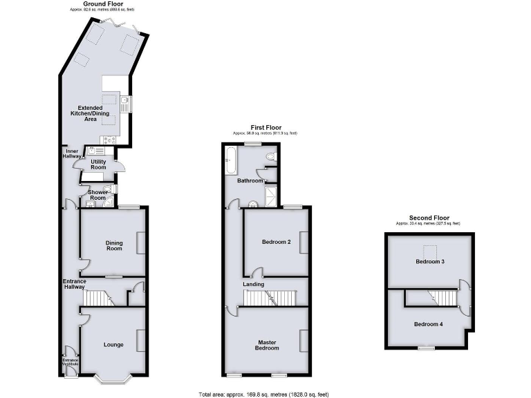
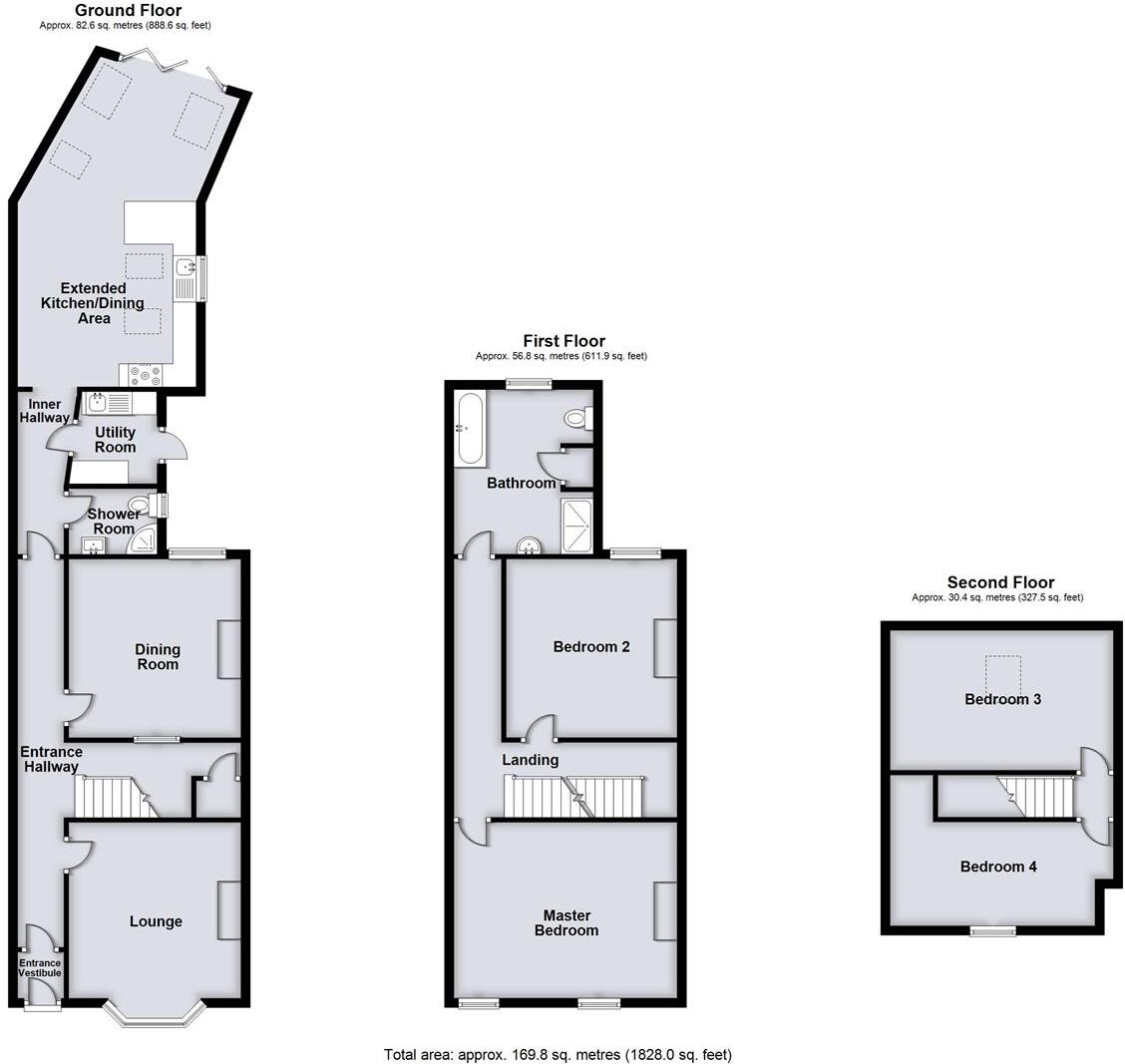
Floorplan Description

Rooms

Textual Property Features

Detected Visual Features

EPC Details

Nearby Schools

Nearest Bars And Restaurants

,,,,}

Nearest General Shops

,,}

Nearest Grocery shops

,,}

Nearest Supermarkets

,,}

Nearest Religious buildings

,,}

Nearest Medical buildings

,,,}

Nearest Airports

}

Nearest Leisure Facilities

,,,,}

Nearest Tourist attractions

,,}

Nearest Train stations

,,,,}

Nearest Bus stations and stops

,,,,}

Nearest Hotels

,,}

Tags

Local Market Stats

AirBnB Data

Meta

High Res Images

Compatible Images

Low res Images

Thumbnails

Raw Images

High Res Floorplan Images

Compatible Floorplan Images

Low res Floorplan Images

FloorplanImages Thumbnail

Raw Floorplan Images