Modern four-bedroom detached home with garden and parking, ideal for families.
Four double bedrooms with primary bedroom en suite
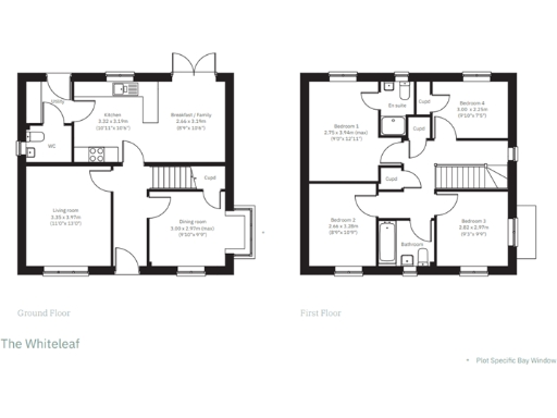
This newly built four-bedroom detached home by Persimmon Homes at St Michael’s Place is aimed at growing families seeking modern, low-maintenance living on the outskirts of Colchester. The layout includes an open-plan kitchen/breakfast/family room with French doors to a private rear garden, a separate living room and a dining room with bay window — practical for daily family life and entertaining.
Bedroom one benefits from an en suite, and there are three further double bedrooms plus a family bathroom and handy storage cupboards upstairs. Off-street parking and a fenced, enclosed garden add useful outdoor and parking space. The development is well placed for local schools rated Good and Outstanding, A12 road access and direct trains to London.
Buyers should note the stated total floor area (circa 800 sq ft) is small for a four-bedroom house; room proportions will be more compact than many detached family homes. Images supplied are not plot specific and illustrate the house type only. Council tax banding and some running-cost details are not provided and should be clarified before offer.
This property is freehold and carries no identified flood risk. The show home is open by appointment for viewings; early visits are recommended given new-build demand in this area.
4 bedroom semi-detached house for sale in James Ward Road, St Michaels Place, Colchester, CO2 — £385,000 • 4 bed • 1 bath • 919 ft²
3 bedroom detached house for sale in Clerke Chase, 'St Michael's Place', Colchester, CO2 — £380,000 • 3 bed • 2 bath • 320 ft²
4 bedroom detached house for sale in St Michael's Place,
Berechurch Road,
Colchester,
Essex,
CO2 9PN, CO2 — £469,995 • 4 bed • 1 bath • 819 ft²
3 bedroom end of terrace house for sale in James Ward Road, 'St Michael's Place', Colchester, CO2 — £389,995 • 3 bed • 2 bath • 665 ft²
4 bedroom detached house for sale in Blackheath, Colchester, Essex, CO2 — £450,000 • 4 bed • 1 bath • 993 ft²
4 bedroom detached house for sale in Colchester,
CO4 6AZ, CO4 — £525,000 • 4 bed • 2 bath














































































































































































































































































