W9 3BE - 2 bed victorian garden flat in Portnall Road, W9 3BE

View on Property Piper

2 bedroom flat for sale in Portnall Road, Maida Vale, W9

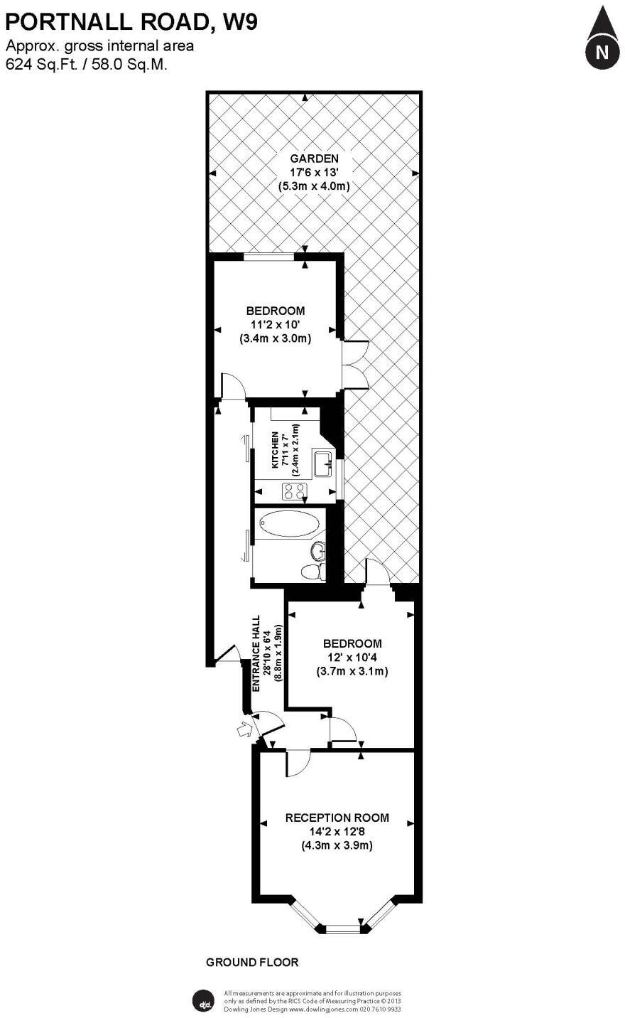
Summary - Ground Floor Flat, 98A Portnall Road W9 3BE

2 bed 1 bath Flat

Two-bedroom conversion with private garden near Portobello and transport links.
- Ground-floor two-bedroom period conversion with private rear garden
- Bright reception room with bay window and hardwood floors
- Separate, well-appointed kitchen and direct garden access
- Share of freehold; no recorded service charge or ground rent
- Approximately 624 sq ft — average-sized for two-bedroom flat
- Single bathroom only; may be limiting for families
- Solid brick construction; likely no cavity insulation (energy upgrade potential)
- Council Tax Band E and wider area shows pockets of deprivation
Set within a Victorian conversion on Portnall Road, this ground-floor two-bedroom flat pairs period character with contemporary finishes. The reception room’s elegant bay window and wood floors create a bright, comfortable living space, while a separate kitchen and direct access to a private rear garden add practical family appeal.

At about 624 sq ft the layout suits a young family or professionals seeking a well-located home with outdoor space. The property is sold with a share of freehold and no service charge or ground rent recorded, simplifying onward ownership. Local green spaces, good primary schools and the shops and cafés of Portobello and Golborne Road are all within easy walking distance, with multiple Underground and rail connections nearby.

Buyers should note a few material points: the flat has a single bathroom, sits in Council Tax Band E (above average), and the building’s solid brick construction likely lacks cavity wall insulation, so energy improvements may be advisable. The wider area shows pockets of deprivation despite the strong local amenities, and any buyer should verify the details in the listing before proceeding.

Overall this is a practical, well-presented period conversion that offers immediate move-in comfort and straightforward ownership, with clear potential to improve energy efficiency and personalise fixtures over time.

Property Details

Image Descriptions

Floorplan Description

Rooms

Textual Property Features

Target Audience

AI Tags

Detected Visual Features

EPC Details

Nearby Schools

Nearest Bars And Restaurants

,,,,}

Nearest General Shops

,,}

Nearest Grocery shops

,,}

Nearest Supermarkets

,,}

Nearest Religious buildings

,,}

Nearest Medical buildings

,,,}

Nearest Airports

,}

Nearest Leisure Facilities

,,,,}

Nearest Tourist attractions

,,}

Nearest Train stations

,,,,}

Nearest Bus stations and stops

,,,,}

Nearest Hotels

,,}

Tags

AirBnB Data

Similar Properties

Meta

High Res Images

Compatible Images

Low res Images

Thumbnails

Raw Images

High Res Floorplan Images

Compatible Floorplan Images

Low res Floorplan Images

FloorplanImages Thumbnail

Raw Floorplan Images