Turnkey single-storey home with large garden and parking, ready to move into.
Chain free three-bedroom bungalow, single-storey living
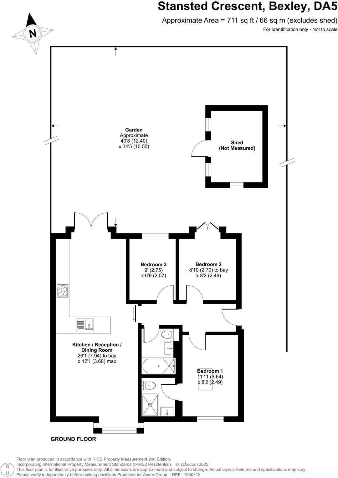
A bright, newly refurbished three-bedroom bungalow on a very large plot in a popular Bexley street. The open-plan kitchen/living area and double doors onto a landscaped private garden create a light, practical single-storey layout ideal for family life. The master bedroom includes an en-suite and a skylight; a second bathroom serves the other bedrooms.
The property is chain free, with off-street parking to the front and generous outdoor space to the rear. Recent works include double glazing and a full internal refurbishment, delivering a turnkey home for buyers who want modern finishes without immediate works. EPC is C and heating is mains gas with boiler and radiators.
There is clear scope to extend (single-storey or loft subject to planning permission), offering long-term value for purchasers who want extra living space. Notable practical points: the overall internal area is modest (about 711 sq ft), the building dates from the 1950s–60s and the cavity walls are recorded as having no insulation (assumed), which may be a consideration for future energy improvements.
Local amenities include good transport links, fast broadband and excellent mobile signal. Several well-regarded primary and secondary schools are nearby, and the location is described as sought-after with low local crime — making this a sensible family choice with potential to add value over time.
2 bedroom semi-detached bungalow for sale in Charter Drive, Bexley, DA5 — £550,000 • 2 bed • 1 bath • 908 ft²
3 bedroom semi-detached bungalow for sale in The Quadrant, Bexleyheath, DA7 — £550,000 • 3 bed • 1 bath • 773 ft²
3 bedroom bungalow for sale in Willow Close, Bexley, DA5 — £595,000 • 3 bed • 1 bath • 1006 ft²
2 bedroom bungalow for sale in Cheviot Close, Bexleyheath, DA7 — £369,000 • 2 bed • 1 bath
3 bedroom bungalow for sale in Steynton Avenue, Bexley, DA5 — £550,000 • 3 bed • 1 bath • 727 ft²
2 bedroom bungalow for sale in Wenvoe Avenue, Bexleyheath, DA7 — £550,000 • 2 bed • 1 bath






























































































































































