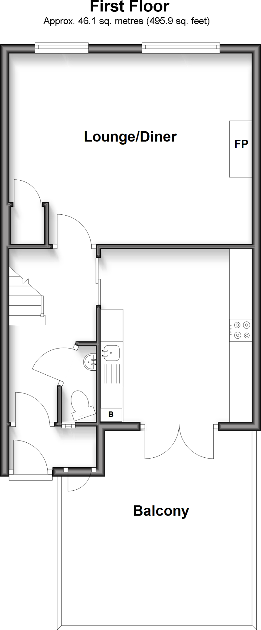
**Standout Features:**
- 3 bedrooms, 1 bathroom, mid-terrace maisonette
- Spacious and bright living areas
- Private entrance and garage
- Two outdoor spaces: balcony/terrace and courtyard garden
- Convenient location close to the sea, shops, and public transport
- Well-maintained throughout with modern double glazing
**Potential Concerns:**
- Leasehold property
- Average-sized accommodation with potential for customization
Experience the charm and comfort of this spacious 3-bedroom maisonette located on the sought-after Hayling Island. Ideal for families or anyone seeking a tranquil seaside lifestyle, this property boasts a bright and airy lounge/diner, a well-appointed kitchen, and two outdoor spaces perfect for relaxing or entertaining.
Convenience is key, as you are close to local shops, public transport, and beautiful coastal views. Enjoy the security of a private entrance and the convenience of a garage for your vehicle or extra storage.
While the property is in great condition and offers an inviting atmosphere, the leasehold status may be a consideration for potential buyers. The combination of space, location, and the potential for personalization makes this maisonette a compelling opportunity. Don’t miss your chance to secure this beautiful home by the sea—properties like this don’t last long!
3 bedroom flat for sale in Bembridge Drive, Hayling Island, Hampshire, PO11 — £250,000 • 3 bed • 1 bath • 706 ft²
3 bedroom flat for sale in Stamford Avenue, HAYLING ISLAND, Hampshire, PO11 — £250,000 • 3 bed • 1 bath • 1073 ft²
3 bedroom semi-detached house for sale in Sea Grove Avenue, Hayling Island, Hampshire, PO11 — £400,000 • 3 bed • 1 bath • 1190 ft²
4 bedroom town house for sale in Lauren Mews, Seafront, Hayling Island, PO11 — £490,000 • 4 bed • 2 bath • 1614 ft²
3 bedroom terraced house for sale in Eastwood Close, HAYLING ISLAND, Hampshire, PO11 — £270,000 • 3 bed • 1 bath • 977 ft²
2 bedroom flat for sale in Southwood Road, Hayling Island, Hampshire, PO11 — £200,000 • 2 bed • 1 bath • 907 ft²


























































