Large derelict yard with redevelopment potential in Darlington town centre.
Extremely large 2,500 sq ft light-industrial building with high ceilings
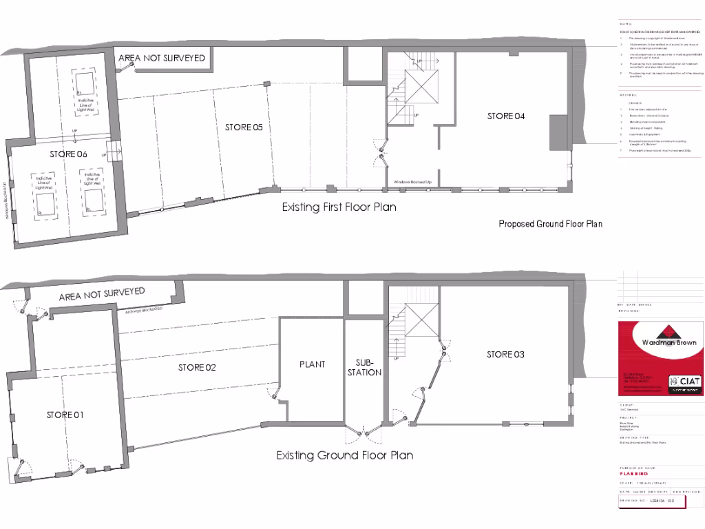
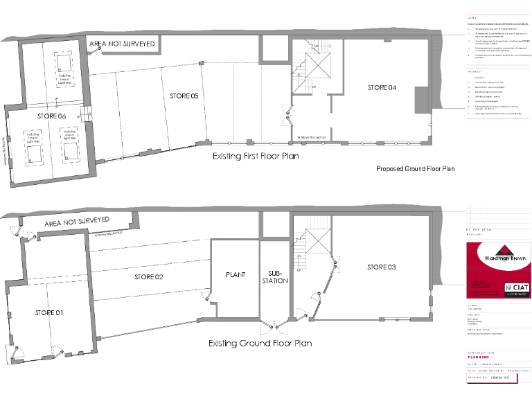
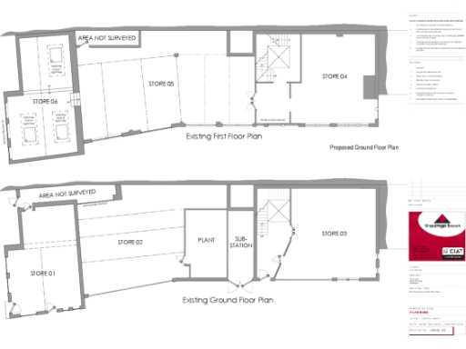
A substantial light-industrial building in Mechanics Yard, Darlington, offered freehold with vacant possession. Arranged over ground, first and second floors and linked by a former bridge into the nearby department store, the property provides large internal volumes and high ceilings suitable for warehousing, workshop uses or redevelopment subject to planning. Its town-centre location means all amenities and public transport are within walking distance and broadband and mobile signals are both strong.
The building is largely derelict and sold as a fixer-upper: it will require investment to make it operational or to secure alternative uses. There is no specific planning consent included, so any change of use or significant alterations will need applications and statutory approval. The plot is small relative to the building footprint, and parking is limited to a garage on site.
This asset will suit buyers prepared to manage refurbishment, apply for planning, or redevelop for mixed commercial/residential uses. It will particularly appeal to investors or developers seeking a large, centrally located site in Darlington with clear potential, but it is not suitable for an occupier seeking a turnkey facility. Note the local area shows high crime levels and wider area deprivation — factors to consider in costings and future use planning.
Office for sale in Bakehouse Hill, Darlington, Durham, DL1 — £325,000 • 1 bed • 1 bath • 4000 ft²
Office for sale in Offices, Whessoe Road, Darlington DL3 0QT, DL3 — £525,000 • 1 bed • 1 bath • 9951 ft²
Light industrial facility for sale in Lingfield Way, Darlington, DL1 4XX, DL1 — POA • 1 bed • 1 bath • 26888 ft²
Commercial property for sale in Mixed Investment Property in Darlington, 82-86 North Road, Darlington, DL1 2EQ, DL1 — £400,000 • 1 bed • 1 bath • 4423 ft²
Office for sale in Victoria Road, Darlington, DL1 — £139,500 • 1 bed • 1 bath • 1066 ft²
High street retail property for sale in 2 - 8 Clarks Yard, Darlington, DL3 7QH, DL3 — £415,000 • 1 bed • 1 bath • 3706 ft²


















































