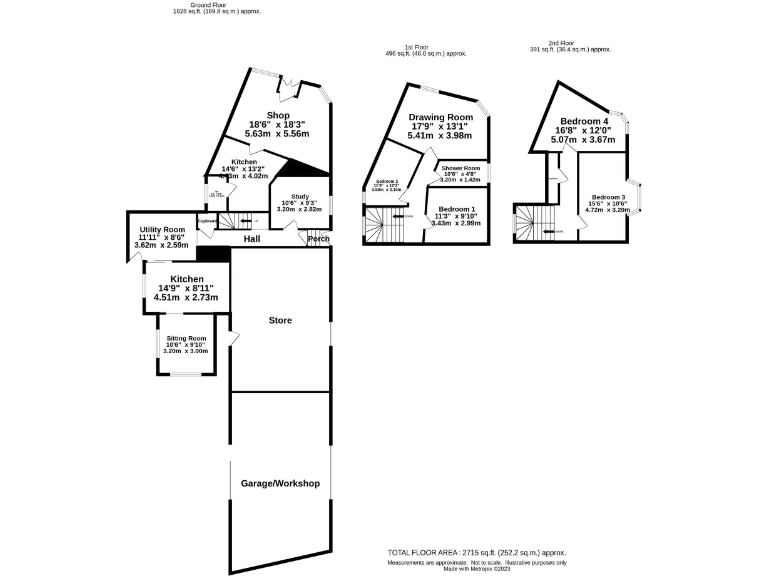
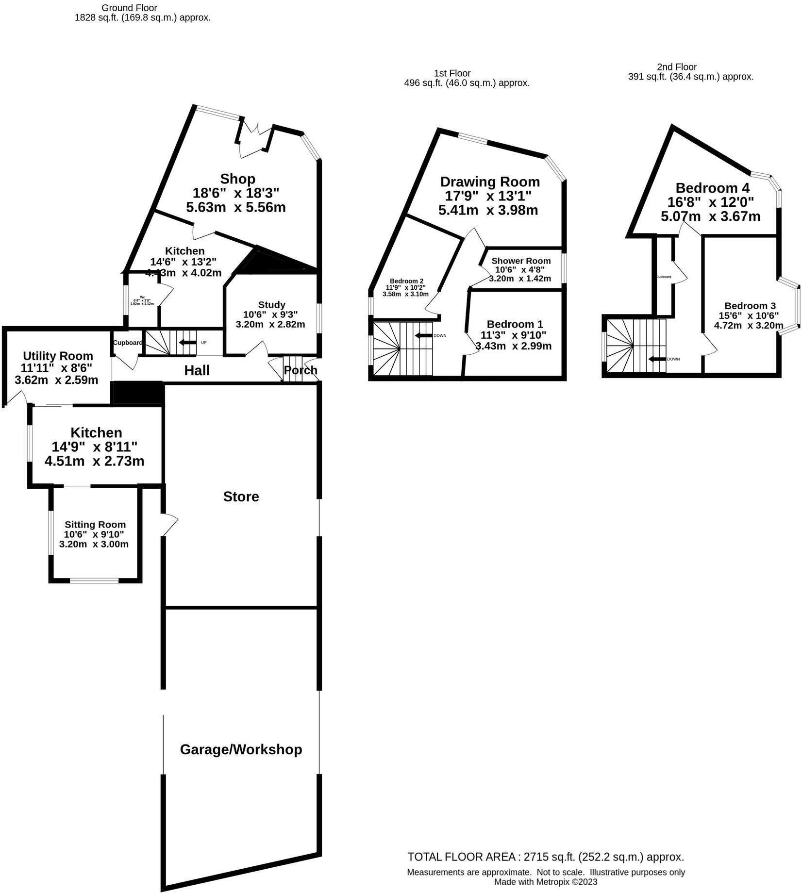
**Key Features:**
- Spacious 4-bedroom family residence across three floors
- Additional retail unit with kitchen/store and WC
- Large garage/workshop and ample storage
- Generous walled garden at the rear
- Well-maintained with attractive period features
- Excellent mobile signal and average broadband speeds
Nestled in the heart of Stranraer, this charming Victorian corner property presents a unique opportunity for investors and families alike. With a total of 2,715 square feet, the home boasts four well-sized bedrooms, a splendid kitchen, and versatile living spaces including a dining room, sitting room, study, and drawing room—a perfect setup for family gatherings and entertaining. The traditional architecture enhances the residential appeal, while the retail unit provides additional commercial potential for prospective buyers.
The property features a generous walled garden, ideal for outdoor relaxation or play, alongside a spacious garage/workshop. However, it's important to note the dated aspects of internal decor which may require modernization. This property combines the comfort of family living with the convenience of town amenities located just a short walk away, including shops, cafes, and recreational facilities.
Offering a rare blend of residential and commercial opportunity, this property is attractively priced at £245,000, making it a prime option for first-time buyers seeking a versatile living space in a vibrant community. Don't miss the chance to explore this potential-filled family home—schedule a viewing today!
4 bedroom terraced house for sale in Dalrymple Terrace, Stranraer, DG9 — £95,000 • 4 bed • 2 bath • 1661 ft²
4 bedroom terraced house for sale in Dalrymple Terrace, Stranraer, DG9 — £100,000 • 4 bed • 1 bath • 1496 ft²
1 bedroom property for sale in Princes Street, Stranraer, DG9 — £60,000 • 1 bed • 1 bath • 732 ft²
High street retail property for sale in 14 George Street, Stranraer, Wigtownshire, DG9 7RL, DG9 — £80,000 • 1 bed • 1 bath • 1649 ft²
4 bedroom semi-detached house for sale in Lewis Street, Stranraer, DG9 — £129,000 • 4 bed • 2 bath • 1081 ft²
4 bedroom semi-detached house for sale in 'Hillcrest', Edinburgh Road, Stranraer, DG9 7HD, DG9 — £230,000 • 4 bed • 2 bath • 2924 ft²














































































































































