Town-centre pair with refurbishment upside and immediate rental potential.
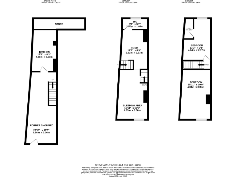
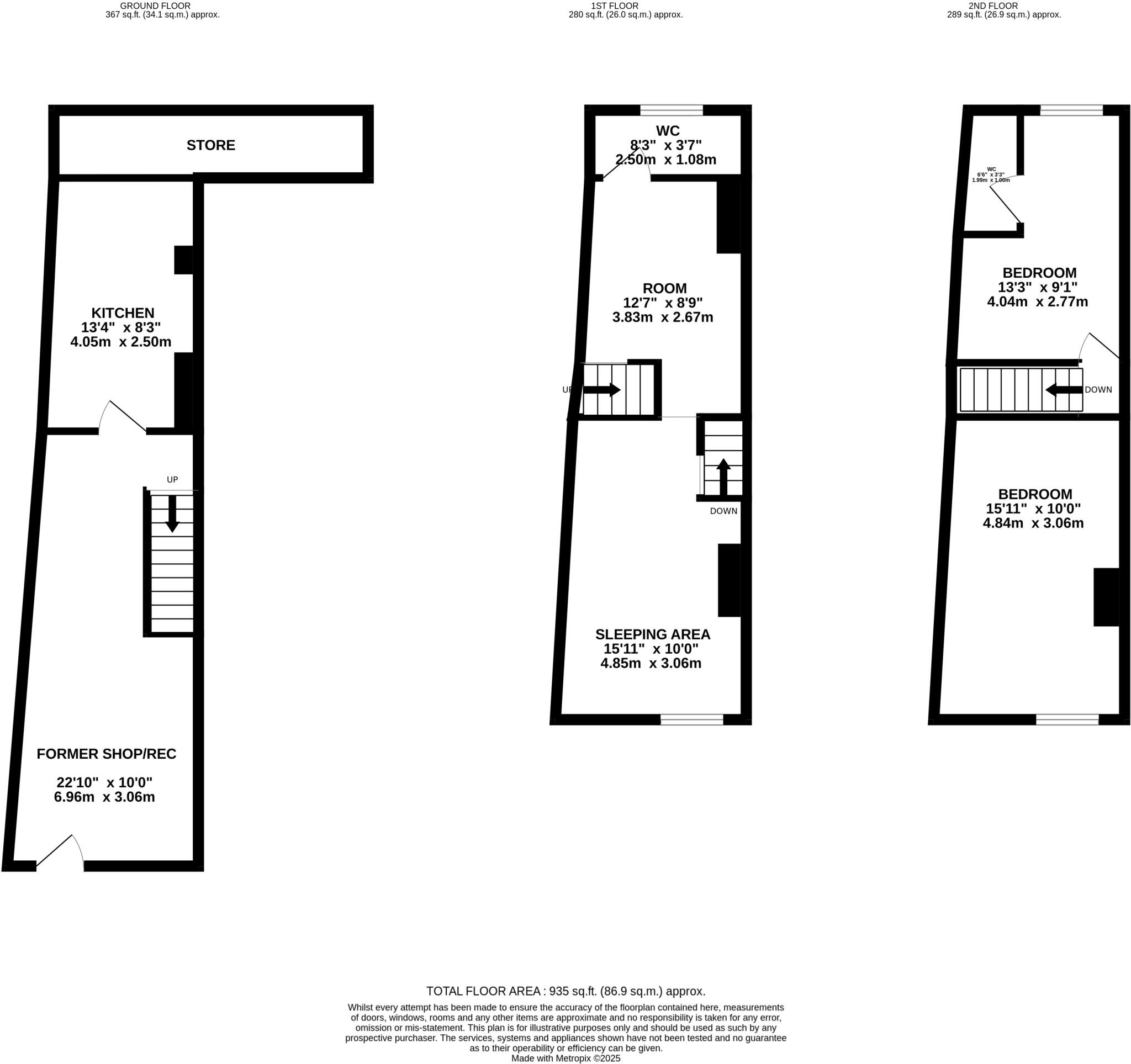
Freehold pair of adjoining mid-terrace houses, approx. 935 sq ft total
Part-let: one unit currently producing £5,640 per annum
One property vacant and requires updating throughout
EPC rating F for both units — energy improvements likely required
Located 0.2 miles from Dewsbury train station and town amenities
Sold at auction 27 Nov 2025; 10% deposit and buyers’ fee apply
Area is very deprived with very high crime — factor in rental risk
Built c.1900–1929 with limited insulation; refurbishment potential
This town-centre pair on Daisy Hill is a small, freehold multi-storey opportunity aimed at investors or cash buyers prepared to renovate. The two adjoining properties were converted from commercial use and total approximately 935 sq ft across five bedrooms and one bathroom. One house is vacant and needs updating; the other is tenanted, producing £5,640 per annum. EPCs are F for both units.
The buildings sit in a central Dewsbury location close to the train station (0.2 miles) and local amenities, offering easy lettings potential once refurbished. Constructed c.1900–1929 with stone facades and double glazing installed before 2002, the mid-terrace properties retain period street appeal but will require internal works to reach modern rental standards.
Buyers should note material drawbacks: the homes need renovation, the area scores as very deprived with very high crime, and both EPCs are low. The sale is by unconditional auction (27 Nov 2025) with binding contracts at sale, a minimum 10% deposit and a buyers’ fee (2.4% min £2,400). Prospective purchasers must review the legal pack and arrange inspections before bidding.
For an investor willing to carry refurbishment works, the central location and short walk to transport links could deliver improved rental income and a strong yield once fully let. This is a clear fix-and-let or light refurbishment play rather than a move-in-ready family home.
5 bedroom house for sale in 40 and 40A Daisy Hill, Dewsbury WF13 1LH, WF13 — £100,000 • 5 bed • 1 bath
High street retail property for sale in 11 Corporation Street, Dewsbury, West Yorkshire WF13 1QN, WF13 — £78,000 • 1 bed • 1 bath • 735 ft²
Commercial property for sale in Oates Street, Dewsbury, WF13 — £49,500 • 1 bed • 1 bath • 2185 ft²
2 bedroom end of terrace house for sale in 21 Great Northern Street, Morley, Leeds LS27 9AF, LS27 — £85,000 • 2 bed • 1 bath • 874 ft²
1 bedroom flat for sale in Apt 5, Howgate House, 3 Wellington Road, Dewsbury WF13 1HF, WF13 — £10,000 • 1 bed • 1 bath • 407 ft²
1 bedroom terraced house for sale in Armitage Street, Dewsbury, WF13 — £75,000 • 1 bed • 1 bath • 813 ft²






































































