Chain-free period home with separate lower-ground income potential close to seafront.
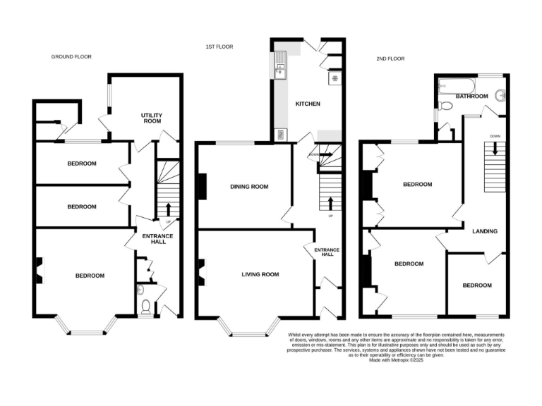
Six bedrooms across three floors, bay-windowed sitting room and dining room
This substantial Victorian mid-terrace offers bright, high-ceilinged rooms across three floors and suits both family living and an investor scheme. Raised ground and lower-ground entrances create genuine home-with-income potential — the basement level could work as a separate flat, HMO, or holiday-let (subject to consents).
The principal accommodation includes two reception rooms, a generous kitchen and well-proportioned bedrooms. Original features such as bay windows, fireplaces and high ceilings add character, while a small, low-maintenance front and rear garden give outside space without heavy upkeep.
Practical points to note: the property has a single bathroom for six bedrooms and an EPC D; walls are likely uninsulated solid brick, so energy improvement work may be necessary. Council Tax sits at Band F and the immediate area records very high crime and local deprivation — factors to consider for family buyers or lettings.
Location is a clear strength: close walking distance to the seafront, town centre and mainline station with excellent links to London, Gatwick and Brighton. Chain-free sale makes for a potentially quicker transaction, but buyers should survey services, insulation and wiring before committing.
6 bedroom terraced house for sale in St. Aubyns Road, Eastbourne, BN22 — £450,000 • 6 bed • 1 bath • 1786 ft²
6 bedroom terraced house for sale in St Marys Road, Old Town, Eastbourne, East Sussex, BN21 — £525,000 • 6 bed • 2 bath • 1558 ft²
6 bedroom town house for sale in Marine Parade, Eastbourne, East Sussex, BN21 — £1,200,000 • 6 bed • 3 bath • 2666 ft²
6 bedroom semi-detached house for sale in South Cliff Avenue, Eastbourne, BN20 7AH, BN20 — £830,000 • 6 bed • 3 bath • 3100 ft²
5 bedroom terraced house for sale in Cambridge Road, Eastbourne, BN22 7BT, BN22 — £330,000 • 5 bed • 2 bath • 1302 ft²
5 bedroom terraced house for sale in Cambridge Road, Eastbourne, BN22 — £349,950 • 5 bed • 2 bath • 1262 ft²














































































