Large family home with countryside views and flexible living spaces.
Approximately 3,801 sqft of living space across two main floors
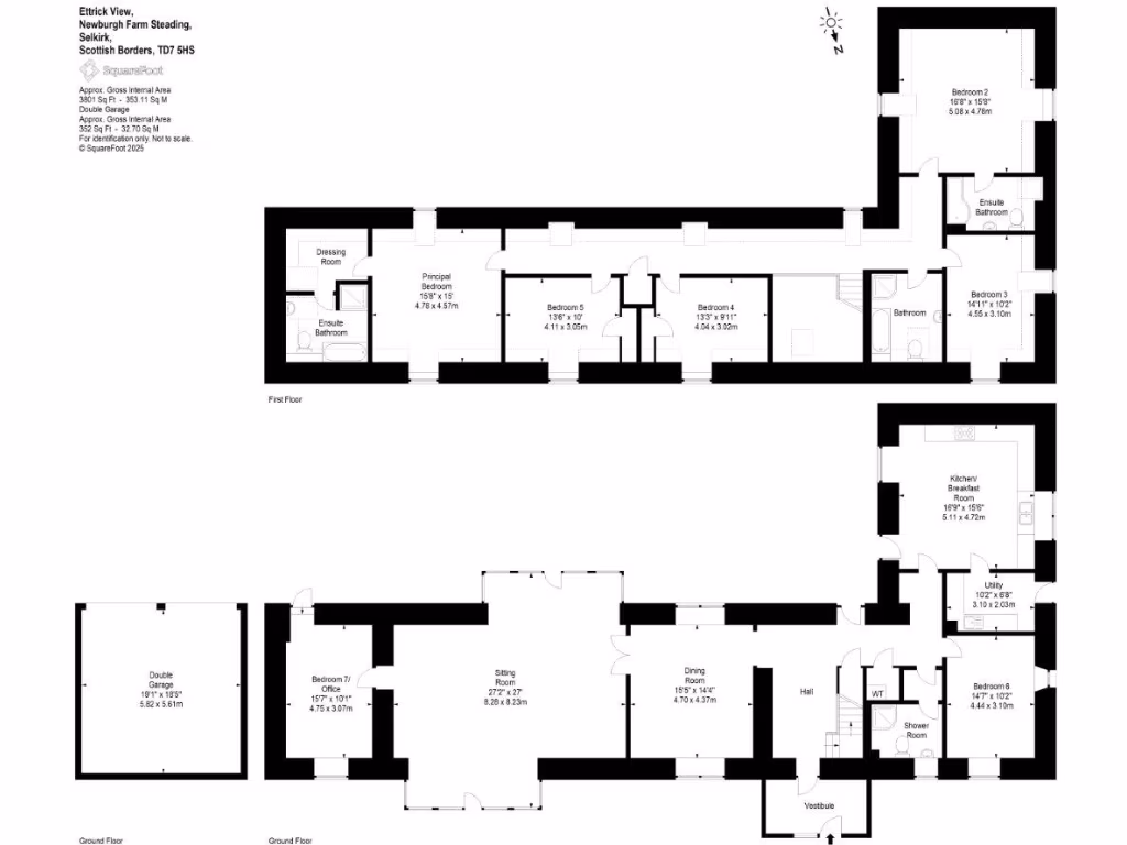
Ettrick View is a spacious converted steading offering family-sized accommodation across two principal floors. The house extends to about 3,801 sqft and provides six principal bedrooms, two en-suite bathrooms, three reception rooms and flexible ground-floor space that could serve as a study, guest room or playroom. The conversion blends traditional stonework with modern fittings and large windows that capture wraparound rural views.
Outside, the property sits within a generous, low-maintenance lawn and gravel courtyard with a double garage and two parking spaces — useful for storage, a workshop or a home gym. Broadband speeds are reported as fast, and there is no flooding risk, supporting comfortable rural living while remaining connected. The nearby town of Selkirk is approximately 13 miles away for shops and services.
Buyers should note material practicalities: the house sits in a remoter, agricultural community classified as very deprived, and council tax is described as quite expensive. Mobile signal is average. The interior is presented in neutral decor, offering scope to personalise but also indicating some updating could be desirable to match individual tastes.
Overall, Ettrick View will suit families seeking generous rooms, countryside views and flexible living in a converted barn setting. It rewards buyers who value space and character and who are comfortable with rural living and the associated travel and service considerations.
3 bedroom barn conversion for sale in 1 The Steading, Crosslee, Selkirk TD7 — £300,000 • 3 bed • 2 bath • 2186 ft²
6 bedroom barn conversion for sale in The Cart House, Newburgh Farm Steading, SELKIRK, TD7 5HS, TD7 — £500,000 • 6 bed • 4 bath • 3584 ft²
3 bedroom detached house for sale in Gair House, Ettrick Valley, Selkirk, TD7 5HZ, TD7 — £425,000 • 3 bed • 2 bath • 1302 ft²
Barn for sale in Blyth Bridge, The Mount, EH46 — £400,000 • 5 bed • 3 bath • 2508 ft²
6 bedroom detached house for sale in Selkirk, TD7 — £600,000 • 6 bed • 4 bath • 3434 ft²
4 bedroom detached house for sale in Newburgh, Ettrick Valley, Selkirk, TD7 5HS, TD7 — £620,000 • 4 bed • 4 bath • 2476 ft²






















































































































